

Immobilien Nöbel GmbH
Herr Holger Eicke
022 ···
Nr. anzeigenPreise & Kosten
Provision für Käufer
3,57% inkl. ges. MwSt.
Die vom Käufer zu zahlende Maklergebühr beträgt 3,57 % aus dem Kaufpreis. Sie ist fällig und zahlbar mit Zustandekommen des notariellen Kaufvertrages. Weitere Informationen siehe Provisionshinweis.
Lage
Rheidt ist einer der beliebtesten Stadtteile von Niederkassel. Es bestehen gute Autobahnanbindungen, z.B. die A 59 und die A 565 in umliegende Städte wie Bonn und Köln. Das gut ausgebaute Busliniennetz bietet ebenfalls schnelle Verbindungen. In Rheidt gibt es Spielplätze, Kindergärten und eine Grundschule. Geschäfte des...
Büro-/Praxisfläche
Kategorie
Praxis
Baujahr
2003
Bezug
01.03.2026
Derzeitige Nutzung
vermietet
Geschoss
Erdgeschoss
Energie & Heizung
Warum sehe ich diese Anzeige? – Du siehst diese Anzeige basierend auf Ihrer Navigation auf unserer Website und den Suchkriterien, die du verwendet hast.
Wärme
Energieausweistyp
Verbrauchsausweis
Gebäudetyp
Nicht-Wohngebäude
Wesentliche Energieträger
Gas
Gültigkeit
16.02.2021 bis 15.02.2031
Endenergieverbrauch (Wärme)
135,80 kWh/(m²·a) - Warmwasser enthalten
Weitere Energiedaten
Energieträger
Gas
Heizungsart
Zentralheizung
Details
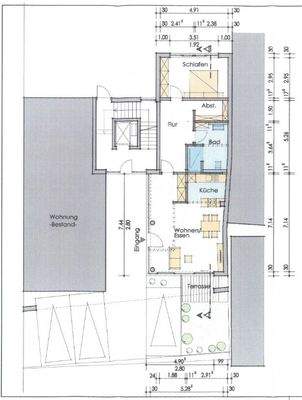
Objektbeschreibung
Das Gesamtobjekt wurde 2003 erbaut und bestand aus acht Wohnungen und zwei Gewerbeeinheiten, die sich auf zwei Häuser verteilten. Die Gewerbeeinheit im Erdgeschoss links wurde bereits vor vielen Jahren per Nutzungsänderung in eine Wohnung umgewandelt und ist seitdem auch als Solche bewohnt.
Die hier zum Verkauf...
Ausstattung
Das Objekt ist dem Baujahr entsprechend normal gut ausgestattet. Die Böden sind vollständig in zeitlosem Granit ausgearbeitet. Das innenliegende Badezimmer bietet neben WC und Waschbecken eine begehbare Dusche und eine Badewanne. Alle Fenster sind aus Kunststoff beschaffen und mit einer Doppelverglasung ausgestattet. Geheizt...
Preisinformation
3 Stellplätze
Soll-Mieteinnahmen pro Jahr: 11.400,00 EUR
Ist-Mieteinnahmen pro Jahr: 11.400,00 EUR
Weitere Informationen
Provisionshinweis
3,57% inkl. ges. MwSt.
Die vom Käufer zu zahlende Maklergebühr beträgt 3,57 % aus dem Kaufpreis. Sie ist fällig und zahlbar mit Zustandekommen des notariellen Kaufvertrages. Der Verkäufer hat mit dem Makler-Allein-Auftrag eine gleichlautende Provisionsvereinbarung geschlossen.
Sonstiges
Die...
Anbieter der Immobilie

Online-ID: 2mcjc56
Referenznummer: 4482
Finde Angebote wie dieses
Hier geht es zu unserem Impressum, den Allgemeinen Geschäftsbedingungen, den Hinweisen zum Datenschutz und nutzungsbasierter Online-Werbung.