
Alexander Voll Immobilien e.K.
Herr Alexander Voll
051 ···
Nr. anzeigenPreise & Kosten
Provision für Käufer
2,98 % inkl. gesetzl. MwSt.
Lage
Die angebotene Immobilie präsentiert sich in bevorzugter Lage im Stadtteil Hannover-Vinnhorst in 2. Reihe am Mittellandkanal. Das Objekt befindet sich auf einem großzügigen Eckgrundstück in einer ruhigen Sackgasse ohne Durchgangsverkehr.
Die Infrastruktur des Stadtteils ist optimal! - Kindergärten, Schulen...
Das Haus
Kategorie
Doppelhaushälfte
Baujahr
1959
Energie & Heizung
Warum sehe ich diese Anzeige? – Du siehst diese Anzeige basierend auf Ihrer Navigation auf unserer Website und den Suchkriterien, die du verwendet hast.
Energieausweistyp
Bedarfsausweis
Gebäudetyp
Wohngebäude
Wesentliche Energieträger
Solar, Strom, Gas
Effizienzklasse
A+
Endenergiebedarf
29,60 kWh/(m²·a)
Weitere Energiedaten
Heizungsart
Luft-/Wasser-Wärmepumpe
Details
Objektbeschreibung
• attraktive Immobilie in Toplage am Mittellandkanal
• großzügige Doppelhaushälfte mit hybrider Heiztechnik
• ca. 2019 – 2021 wurde das Objekt angebaut u. saniert
• ideal für die große Familie oder als Generationshaus geeignet
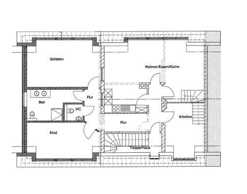
• insgesamt ca. 235 m² Wohnfläche + Nfl.
• beide Etagen komplett als Wohnung...
Ausstattung
Hochwertig sanierte Immobilie in Toplage am Mittellandkanal im Stadtteil Vinnhorst!
Bei diesem Objekt handelt es sich um eine großzügige Doppelhaushälfte, die ursprünglich ca. 1959 in Massivbauweise mit Kellergeschoss errichtet wurde.
In der Zeit von ca. 2019 - 2021 wurde die Immobilie umfassend saniert...
Weitere Informationen
Das Angebot und die Angaben sind unverbindlich und freibleibend. Eine Haftung für die Richtigkeit und Vollständigkeit übernimmt der Anbieter nicht. Die Angaben erfolgen gemäß der vom Auftraggeber erteilten Auskünfte. Irrtum, Änderungen und Zwischenverkauf bleiben vorbehalten.
Wenn auch Sie eine Immobilie verkaufen...
Anbieter der Immobilie
Alexander Voll Immobilien e.K.
Hildesheimer Str. 2E, 31275 Lehrte/Hämelerwald
Online-ID: 2mck85a
Referenznummer: 1654
Finde Angebote wie dieses
Hier geht es zu unserem Impressum, den Allgemeinen Geschäftsbedingungen, den Hinweisen zum Datenschutz und nutzungsbasierter Online-Werbung.