

Fabio Babler Real Estate e.U.
Herr Fabio Babler
004 ···
Nr. anzeigenPreise & Kosten
Provision für Käufer
Bitte beachte, das Angebot kann bei Vertragsabschluss die Zahlung einer Provision beinhalten. Weitere Informationen erhältst Du vom Anbieter.
Lage
INFRASTRUKTUR.
In einer sehr zentralen Lage im Wohlfühlort Guntramsdorf, entsteht diese moderne freifinanzierte Wohnhausanlage.
Guntramsdorf bieten Ihnen an diesem Standort hohe Lebensqualität, dichte Infrastruktur im Zusammenhang mit viel Grün und dadurch hohem Freizeitwert.
Genießen Sie die umliegenden...
Die Wohnung
Bezug
ab Sofort
Wohnanlage
Energie & Heizung
Warum sehe ich diese Anzeige? – Du siehst diese Anzeige basierend auf Ihrer Navigation auf unserer Website und den Suchkriterien, die du verwendet hast.
Heizwärmebedarf (HWB)
39,20 kWh/(m²·a)
Gesamtenergieeffizienz (fGEE)
0,56
Weitere Energiedaten
Heizungsart
Fußbodenheizung, offener Kamin, Zentralheizung
Details
Objektbeschreibung
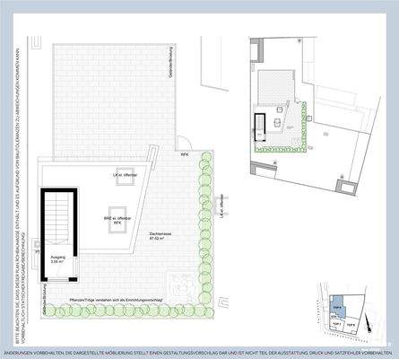
Exklusive Neubau-Dachgeschosswohnung mit imposantem Dachterrassentraum in Guntramsdorf Wohnung
Diese außergewöhnliche Dachgeschosswohnung vereint modernste Ausstattung, durchdachte Architektur und ein Maximum an Wohnkomfort - ein wahres Highlight für alle, die Großzügigkeit, Privatsphäre und stilvolles Wohnen zu...
Preisinformation
2 Garagenstellplätze, Kaufpreis je: 24.000,00 EUR
Weitere Informationen
Sonstiges
.
WIR HABEN IHR INTERESSE GEWECKT?
Gerne übermitteln wir Ihnen den Vorabzug der Verkaufsunterlagen und stehen Ihnen auch gerne persönlich zur Verfügung.
Wir bitten um Verständnis, das wir auf Grund der "Nachweispflicht" gegenüber dem Eigentümer, ausschließlich Anfragen mit vollständiger...
Anbieter der Immobilie
Fabio Babler Real Estate e.U.
Pöllangraben 46, 2345 BRUNN AM GEBIRGE

Online-ID: 2mcka5c
Referenznummer: FBRE-2025-00296
Finde Angebote wie dieses
Günstige Immobilienfinanzierung einfach online berechnen
Persönliches Angebot berechnenWarum sehe ich diese Werbung? – Du siehst diese Werbung basierend auf Deiner Navigation auf unserer Website und der von Dir verwendeten Suchkriterien.
Diese Werbung wird bezahlt von durchblicker
Werbung melden
Hier geht es zu unserem Impressum, den Allgemeinen Geschäftsbedingungen, den Hinweisen zum Datenschutz und nutzungsbasierter Online-Werbung.