

DAHLER Potsdam | Berlin-Wannsee | Kleinmachnow
Herr Kevin Manhardt
033 ···
Nr. anzeigenPreise & Kosten
Provision für Käufer
3.57% inkl. 19 % MwSt. bezogen auf den beurkundeten Kaufpreis
Lage
Willkommen in der Jägervorstadt: Ein Viertel mit unvergleichlichem Charme
In einem historischen und kulturellen Kontext sticht die Jägervorstadt als eine der begehrtesten Wohnlagen Potsdams hervor. Hier verleihen herrschaftliche Villen dem Quartier einen unvergleichlichen Charme. Besonders die Weinbergstraße und die...
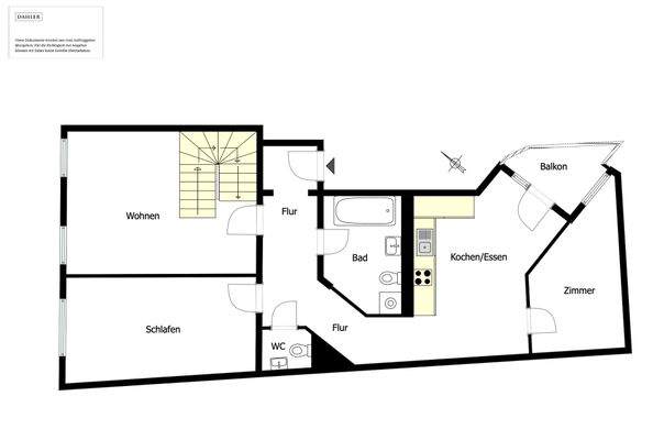
Die Wohnung
Kategorie
Maisonette
Wohnungslage
3. Geschoss
Wohnanlage
Energie & Heizung
Warum sehe ich diese Anzeige? – Du siehst diese Anzeige basierend auf Ihrer Navigation auf unserer Website und den Suchkriterien, die du verwendet hast.
Energieausweistyp
Verbrauchsausweis
Gebäudetyp
Wohngebäude
Baujahr laut Energieausweis
1880
Wesentliche Energieträger
GAS
Gültigkeit
bis 04.09.2028
Effizienzklasse
C
Endenergieverbrauch
93,00 kWh/(m²·a)
Weitere Energiedaten
Energieträger
Gas
Heizungsart
Zentralheizung
Details
Objektbeschreibung
Die hier angebotene Wohnung befindet sich in der hochwertigen Weinbergstraße, deren Namensgebung vom nahegelegenen Winzerberg herrührt. Kennzeichnend für die Straße ist die enge Bebauung mit villenartigen Bürgerhäusern. Die hochherrschaftlichen Mietwohnhäuser wurden schmuckvoll gestaltet. So finden Sie beispielsweise im...
Ausstattung
. Repräsentatives Wohnhaus aus dem Jahre 1880
. Ruhige Wohnung im 3. Obergeschoss und Dachgeschoss mit ca. 134 m² Wohnfläche
. 5,5 Zimmer, davon zwei großzügige Wohnbereiche
. 3,5 Schlafzimmer
. Ein Balkon und eine Dachterrasse, davon die Dachterrasse mit Südausrichtung
. Einbauküche
. Zwei Badezimmer mit...
Preisinformation
1 Stellplatz
Weitere Informationen
Sonstiges
Ihre Werte sind bei uns in besten Händen
DAHLER ist auf die Vermittlung hochwertiger Wohnimmobilien in bevorzugten Lagen spezialisiert. Seit über 30 Jahren wird unser Unternehmen von Kirsten und Björn Dahler geführt und setzt mit Innovationskraft und Servicequalität Maßstäbe in der Branche. Unsere mehr als...
Anbieter der Immobilie

Online-ID: 2mcnn5k
Referenznummer: D-POT8255-15-LIV
Finde Angebote wie dieses
Hier geht es zu unserem Impressum, den Allgemeinen Geschäftsbedingungen, den Hinweisen zum Datenschutz und nutzungsbasierter Online-Werbung.