
HTN Immobilien Management GmbH Exklusivpartner von FALC Immobilien Solingen
Frau Sabine Littera
+49 ···
Nr. anzeigenPreise & Kosten
zzgl. Nebenkosten
Kaution
3 MM
Provision für Mieter
provisionsfrei
Warum sehe ich diese Anzeige? – Du siehst diese Anzeige basierend auf Ihrer Navigation auf unserer Website und den Suchkriterien, die du verwendet hast.
Lage
1A-Lage
Die Bürofläche liegt im Gewerbegebiet Piepersberg in Solingen, einem gefragten Standort für Unternehmen unterschiedlichster Branchen.
Die hervorragende Verkehrsanbindung macht diesen Standort besonders attraktiv: Die Autobahn A46 nur wenige Autominuten entfernt und ermöglicht eine schnelle Verbindung zu...
Büro-/Praxisfläche
Kategorie
Bürofläche
Baujahr
2022
Energie & Heizung
Warum sehe ich diese Anzeige? – Du siehst diese Anzeige basierend auf Ihrer Navigation auf unserer Website und den Suchkriterien, die du verwendet hast.
Wärme
Energieausweistyp
Bedarfsausweis
Gebäudetyp
Nicht-Wohngebäude
Wesentliche Energieträger
Umweltwärme
Gültigkeit
03.10.2023 bis 03.10.2033
Endenergiebedarf (Wärme)
95,09 kWh/(m²·a)
Details
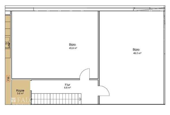
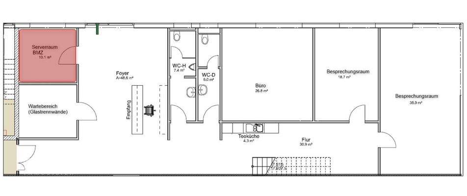
Objektbeschreibung
***Willkommen in Ihrer neuen Bürofläche - Ideal für Ihr wachsendes Unternehmen oder moderne Co-Working-Spaces.***
Diese attraktive Bürofläche im Gewerbegebiet Piepersberg erstreckt sich über zwei Stockwerke mit einer Gesamtfläche von ca. 280 m². Das Objekt überzeugt durch funktionale Raumaufteilung, hochwertige...
Weitere Informationen
Sonstiges
Das Kaufangebot wurde nach Angaben und Unterlagen des Verkäufers erstellt. Eine Gewähr für Vollständigkeit und Richtigkeit können wir nicht übernehmen.
Haftungsausschluss:
Wir bemühen uns, möglichst vollständige und richtige Angaben zu erhalten und weiterzuleiten. Eine Haftung für die Richtigkeit...
Anbieter der Immobilie
HTN Immobilien Management GmbH Exklusivpartner von FALC Immobilien Solingen
Höher Straße 4, 42655 Solingen
Online-ID: 2mcp759
Referenznummer: FALC-SL-77244
Finde Angebote wie dieses
Hier geht es zu unserem Impressum, den Allgemeinen Geschäftsbedingungen, den Hinweisen zum Datenschutz und nutzungsbasierter Online-Werbung.