team19 Immobilien GmbH

Herr Stefan Djukic

Zentral, modern, gemütlich - 2-Zimmer-Wohnung am Handelskai 132A - JETZT ANFRAGEN. - WOHNTRAUM

€ 1.199,95
Gesamtmiete inkl. BK
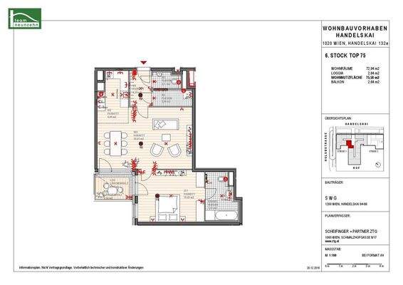
72,05 m²
Wohnfläche ca.
2
Zimmer

Der Anbieter dieses Objekts hat gegenüber der AVIV Germany GmbH als Betreiber dieses Online-Marktplatzes erklärt, nicht als Unternehmer im Sinne des § 1 KSchG zu handeln. Die im Verbraucherschutzrecht der Union verankerten Verbraucherrechte (insbesondere Informationspflichten und Rücktritts- bzw. Widerrufsrechte) finden auf den Vertrag zwischen dem Anbieter des Objekts und Ihnen (dem Interessenten) keine Anwendung.

Gewerblicher Anbieter

Der Anbieter dieses Objekts hat gegenüber der AVIV Germany GmbH als Betreiber dieses Online-Marktplatzes erklärt, als Unternehmer im Sinne des § 1 KSchG zu handeln.

AdresseHandelskai 132A
1020 Wien 
(Leopoldstadt)
Auf Karte ansehen

Preise & Kosten

Gesamtmiete

inkl. Betriebskosten

€ 1.199,95
Nettokaltmiete € 954,95 Betriebskosten € 96,74

Kaution

3 Bruttomonatsmieten

Lage

Millennium Tower, Wien Handelskai Bahnhof, Neue Donau

Die Wohnung

Wohnungslage

6. Geschoss

Bezug

01.01.2026

  • Bad mit Wanne
  • Balkon, Garten, Loggia
  • Einbauküche, offene Küche
  • barrierefrei
  • Böden: Fliesenboden, Parkett
  • Ausstattung: neuwertig
  • Weitere Räume: Abstellraum, Wasch-Trockenraum
  • Anschlüsse: Kabelanschluss

Wohnanlage

  • Zustand: Neubau
  • Personenaufzug

Energie & Heizung

Heizwärmebedarf (HWB)

B

40,50 kWh/(m²·a)

Gesamtenergieeffizienz (fGEE)

C

1,05

Weitere Energiedaten

Energieträger

Fernwärme

Heizungsart

Zentralheizung

Details

Objektbeschreibung

Erstklassige Lage am Handelskai - urban, modern und lebenswert

Die Liegenschaft befindet sich in 1020 Wien, Handelskai 132A, einer gefragten Lage direkt an der Neuen Donau. Die Umgebung zeichnet sich durch ihre moderne Infrastruktur, hervorragende Verkehrsanbindung und hohe Lebensqualität aus. Nur wenige Schritte...

Mehr anzeigen

Preisinformation

Nettokaltmiete: 954,95 EUR

Weitere Informationen

Stichworte
Tiefgarage vorhanden, Süd-West-Balkon/Terrasse, Fahrradraum, Nutzfläche: 75,06 m², Gesamtfläche: 78,22 m², Freifläche: 5,28 m², Anzahl der Badezimmer: 1, Anzahl der separaten WCs: 1, Anzahl Balkone: 1, Anzahl Loggias: 1, Balkon-Terrassen-Fläche: 5,28 m², Bundesland: Wien, Wohnungsnr.: 75

Anbieter der Immobilie

Partner

team19 Immobilien GmbH

im Durchschnitt  4,20  Sterne
(bei 2 Bewertungen)

Handelskai 94-96/44. Stock, 1200 BRIGITTENAU

user

Herr Stefan Djukic

Dein Ansprechpartner

Anbieter-Website Anbieter-Profil Anbieter-Impressum

Online-ID: 2mcpl5l

Referenznummer: OBGC20251205133004734c506aff7ff

Finde Angebote wie dieses

imageimageimage

Hier geht es zu unserem Impressum, den Allgemeinen Geschäftsbedingungen, den Hinweisen zum Datenschutz und nutzungsbasierter Online-Werbung.