Maklerbüro Leitz-Wilke

Frau Ingrid Leitz-Wilke

phone

090 ···

Nr. anzeigen

Gepflegte 2 Zimmer Wohnung im Erdgeschoss mit Einbauküche und Stellplatznutzung in der Innenstadt

€ 650
Kaltmiete zzgl. NK
62 m²
Wohnfläche ca.
2
Zimmer

Der Anbieter dieses Objekts hat gegenüber der AVIV Germany GmbH als Betreiber dieses Online-Marktplatzes erklärt, nicht als Unternehmer im Sinne des § 1 KSchG zu handeln. Die im Verbraucherschutzrecht der Union verankerten Verbraucherrechte (insbesondere Informationspflichten und Rücktritts- bzw. Widerrufsrechte) finden auf den Vertrag zwischen dem Anbieter des Objekts und Ihnen (dem Interessenten) keine Anwendung.

Gewerblicher Anbieter

Der Anbieter dieses Objekts hat gegenüber der AVIV Germany GmbH als Betreiber dieses Online-Marktplatzes erklärt, als Unternehmer im Sinne des § 1 KSchG zu handeln.

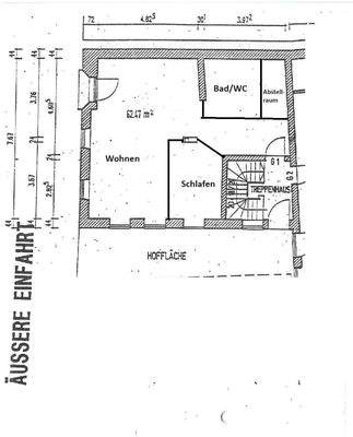
AdresseÄußere Einfahrt 2 T1
86720 Nördlingen 
Auf Karte ansehen

Preise & Kosten

Kaltmiete € 650 Nebenkosten € 80 1 Stellplatz € 50

Kaution

2100

Lage

Die Wohnung

Wohnungslage

Erdgeschoss

Bezug

sofort, nach Absprache

Derzeitige Nutzung

frei

  • Bad mit Dusche
  • Einbauküche
  • Zustand: gepflegt
  • Weitere Räume: Abstellraum

Wohnanlage

  • Baujahr: 1995
  • 1 Stellplatz

Energie & Heizung

info

Energieausweis: für diesen Gebäudetyp nicht notwendig

Weitere Energiedaten

Energieträger

Gas

Heizungsart

Etagenheizung

Details

Weitere Informationen

Raumaufteilung und Allgemeines
Die moderne, helle, gepflegte Wohnung befindet sich im Erdgeschoss.

Der Lageplan, die Grundrisse, die Wohnflächenberechnung und der Schnitt befinden sich bei den Bildern der Anzeige.

Aufteilung
Wohnen / Essen mit Einbauküche
Schlafen mit begehbarem Schrank
Bad mit...

Mehr anzeigen

Dokumente

file_pdfDatenschutzangle_rightfile_pdfWiderrufsbelehrung - Verbraucherangle_right

Anbieter der Immobilie

Partner

Maklerbüro Leitz-Wilke

Löpsinger Graben 1, 86720 Nördlingen

user

Frau Ingrid Leitz-Wilke

Dein Ansprechpartner

Anbieter-Profil Anbieter-Impressum

Online-ID: 2mcqf5d

Finde Angebote wie dieses

imageimageimage

Hier geht es zu unserem Impressum, den Allgemeinen Geschäftsbedingungen, den Hinweisen zum Datenschutz und nutzungsbasierter Online-Werbung.