
McMakler GmbH
Ihr McMakler Team
080 ···
Nr. anzeigenPreise & Kosten
Provision für Käufer
Die Provision i.H.v. 3,57 % inkl. MwSt. ist mit Kaufvertragsbeurkundung fällig, sofern der Verkaufspreis über 83.000,00 € liegt.
Liegt der Verkaufspreis dagegen bei/unter 83. Weitere Informationen siehe Provisionshinweis.
Lage
Die Immobilie befindet sich in der ruhigen und familienfreundlichen Burbachstraße, eingebettet in ein gepflegtes Wohngebiet mit überwiegend Ein- und Doppelhäusern. Hausnummer?11 ist eine Doppelhaushälfte im ruhigen Siedlungs-Charakter der Straße .
Nur ca. 140?m entfernt hält die Buslinie 430 sowie ergänzende Linien wie 252...
Das Renditeobjekt
Baujahr
1978
Bezug
nach Absprache
Energie & Heizung
Warum sehe ich diese Anzeige? – Du siehst diese Anzeige basierend auf Ihrer Navigation auf unserer Website und den Suchkriterien, die du verwendet hast.
Energieausweistyp
Bedarfsausweis
Gebäudetyp
Wohngebäude
Baujahr laut Energieausweis
1978
Wesentliche Energieträger
Gas
Effizienzklasse
E
Endenergiebedarf
150,80 kWh/(m²·a)
Weitere Energiedaten
Energieträger
Gas
Heizungsart
Zentralheizung
Details
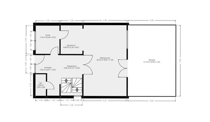
Objektbeschreibung
Objektnr: 1067753
Willkommen in Ihrem neuen Zuhause in Burscheid! Dieses gepflegte Einfamilienhaus aus dem Baujahr 1978 überzeugt mit einer großzügigen Wohnfläche von ca. 200² und einem liebevoll angelegten Grundstück mit über 430?m² Fläche.
Die Immobilie wurde über die Jahre hinweg regelmäßig instand gehalten und...
Ausstattung
+ Ruhige und familienfreundliche Lage in Burscheid
+ Carport, Garage und Stellplatz
+ Das Objekt präsentiert sich in einem gepflegten Zustand
+ Gaszentralheizung mit modenisierten Heizkörpern
Weitere Informationen
Provisionshinweis
Die Provision i.H.v. 3,57 % inkl. MwSt. ist mit Kaufvertragsbeurkundung fällig, sofern der Verkaufspreis über 83.000,00 € liegt.
Liegt der Verkaufspreis dagegen bei/unter 83.000,00 €, ist die fest vereinbarte Mindestprovision i.H.v. mind. 5.950,00 € inkl. MwSt. mit Kaufvertragsbeurkundung fällig...
Anbieter der Immobilie
McMakler GmbH
Am Postbahnhof 17, 10243 Berlin
Online-ID: 2mcsv5u
Referenznummer: 8bd8b8fd8e
Finde Angebote wie dieses
Hier geht es zu unserem Impressum, den Allgemeinen Geschäftsbedingungen, den Hinweisen zum Datenschutz und nutzungsbasierter Online-Werbung.