

Allkauf Haus GmbH
Herr Lutz Schiel
034 ···
Nr. anzeigenPreise & Kosten
Provision für Käufer
provisionsfrei
Lage
Hinweis zum Grundstück
dein Haus entsteht entweder auf einem bereits bestehenden Baugrundstück oder auf einem Grundstück, das sich noch in der Planungsphase befindet.
Das Grundstück erwirbst du dabei direkt vom Eigentümer.
Bitte beachte:
Aus rechtlichen Gründen dürfen wir dir Grundstücksdaten nur im Rahmen...
Das Haus
Kategorie
Mehrfamilienhaus
Baujahr
2026
Energie & Heizung
Warum sehe ich diese Anzeige? – Du siehst diese Anzeige basierend auf Ihrer Navigation auf unserer Website und den Suchkriterien, die du verwendet hast.
Weitere Energiedaten
Haustyp
Niedrigenergiehaus
Heizungsart
Fußbodenheizung, Luft-/Wasser-Wärmepumpe
Details
Objektbeschreibung
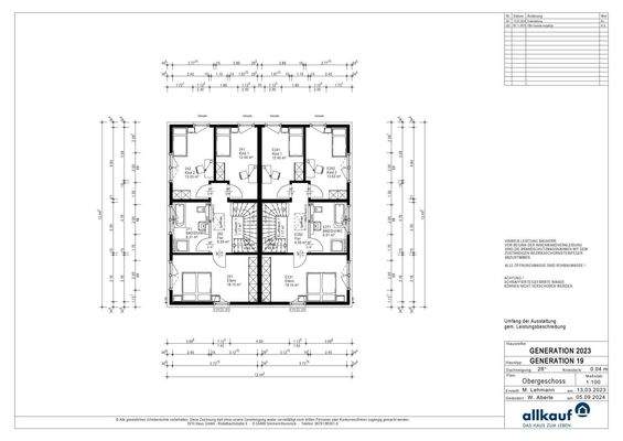
Unser Generation 19 - Zwei Traumhäuser in einem
Im Generation 19 erwarten dich zwei großzügige Wohneinheiten, die du flexibel nutzen kannst: Zum einen, um näher bei deinen Lieben zu wohnen, zum anderen, um eine Einheit zu vermieten und die Finanzierung zu erleichtern.
Jede Wohneinheit erstreckt sich über zwei...
Ausstattung
Für modernen Wohnkomfort sorgen bei deinem Haus eine energieeffiziente Luft-Wasser-Wärmepumpe, eine kontrollierte Be- und Entlüftungsanlage mit Wärmerückgewinnung sowie unser durchdachtes Heizungs- und Elektropaket. Auch die Haustechnik inklusive Rohrleitungen ist bereits vollständig enthalten.
Dein Zuhause überzeugt...
Weitere Informationen
Sonstiges
Mit allkauf Haus wird dein Traum vom Eigenheim Wirklichkeit - individuell, sicher und ganz nach deinen Vorstellungen.
Persönliche Beratung: Wir hören dir zu und begleiten dich von Anfang an.
Individuelle Planung: Gestalte den Grundriss so, wie er zu deinem Leben passt.
Erfahrung &...
Anbieter der Immobilie
Allkauf Haus GmbH
Gletschersteinstr. 53, 04299 Leipzig

Online-ID: 2mctm5v
Referenznummer: 2214-284-kw01-Generation19-129361
Finde Angebote wie dieses
Hier geht es zu unserem Impressum, den Allgemeinen Geschäftsbedingungen, den Hinweisen zum Datenschutz und nutzungsbasierter Online-Werbung.