

Winegg Makler GmbH
Herr Julian Himmelbauer
+43 ···
Nr. anzeigenPreise & Kosten
Provision für Käufer
3% des Kaufpreises zzgl. 20% USt.
Lage
Die Liegenschaft befindet sich in der Schönbrunner Straße, in unmittelbarer Umgebung zum Margaretenplatz und der U4 Station Pilgramgasse.
Der 5. Bezirk ist derzeit der sich wohl am meisten entwickelnde innerstädtische Bezirk Wiens. Die Anbindung an das öffentliche Verkehrsnetz ist jedenfalls als ausgezeichnet zu...
Die Wohnung
Kategorie
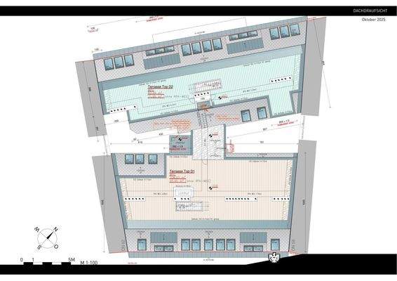
Rohdachboden
Wohnanlage
Energie & Heizung
Warum sehe ich diese Anzeige? – Du siehst diese Anzeige basierend auf Ihrer Navigation auf unserer Website und den Suchkriterien, die du verwendet hast.
Heizwärmebedarf (HWB)
40,90 kWh/(m²·a)
Gesamtenergieeffizienz (fGEE)
0,75
Details
Objektbeschreibung
HIGHLIGHTS
* Stilaltbau
* gegliederte Fassade
* Lift bereits errichtet
* Raumhöhe bis 2,8 m
* Ausbau auf einer Ebene
* Dachterrassen mit fantastischem Blick
* 2-4 Wohneinheiten möglich
* Luftwärmepumpe
* Baubeginn gesetzt 05/2025 wegen Lifteinbau
* Online-Hausverwaltung...
Weitere Informationen
Stichworte
Freifläche: 167,00 m², Bundesland: Wien, 5 Etagen
Anbieter der Immobilie
Winegg Makler GmbH
Herrengasse 1-3 / 4. Stockwerk, 1010 WIEN

Online-ID: 2mcub5q
Referenznummer: OBGC20251212094908827082911fd5c
Finde Angebote wie dieses
Günstige Immobilienfinanzierung einfach online berechnen
Persönliches Angebot berechnenWarum sehe ich diese Werbung? – Du siehst diese Werbung basierend auf Deiner Navigation auf unserer Website und der von Dir verwendeten Suchkriterien.
Diese Werbung wird bezahlt von durchblicker
Werbung melden
Hier geht es zu unserem Impressum, den Allgemeinen Geschäftsbedingungen, den Hinweisen zum Datenschutz und nutzungsbasierter Online-Werbung.