

Densch & Schmidt Immobilien GmbH
Herr Thomas Franke
046 ···
Nr. anzeigenPreise & Kosten
Provision für Käufer
5,95 % incl. MwSt.
Lage
Rendsburg hat etwa 29.000 Einwohner und ist Sitz der Kreisverwaltung für den Kreis Rendsburg - Eckernförde. Die Stadt liegt in der Mitte Schleswig-Holsteins am Nordostseekanal westlich der BAB 7 (Dänemark-Hamburg) und der B 210 (Richtung Kiel).
Das Gewerbegrundstück liegt am nordwestlichen Rand der Stadt, etwa 2-2,5 km...
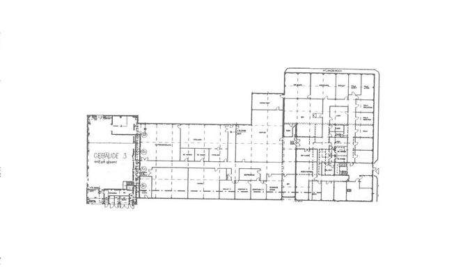
Die Industriefläche
Kategorie
Produktionshalle
Baujahr
1972
Bezug
nach Absprache
Derzeitige Nutzung
vermietet
Details
Objektbeschreibung
Diese gepflegte Gewerbeanlage am nordwestlichen Rand der Stadt Rendsburg wird derzeit als Bürohaus mit angrenzender Produktion und Lagerflächen genutzt.
Die Ausstattung der Büroräume ist modern und zweckmäßig.
Angrenzend an die Büroflächen werden in einem Zwischentrakt Sortieranlagen und Verteilerräume...
Ausstattung
- großzügige Gewerbehalle mit anschließendem Bürotrakt
- moderne, zweckmäßige Ausstattung der Flächen
- großzügige Lagerflächen
- Anlieferungstore
- ausreichende Stellplätze
- hochwertige Brandschutz- sowie Sicherheitsausstattung
- Glasfaseranschluss am Gebäude
Weitere Informationen
Sonstiges
- Nettokaltmiete 119.000 €
- langfristiger Mietvertrag
Stichworte
Lagerfläche: 1.200,00 m², Gesamtfläche: 2.265,00 m², vermietbare Fläche: 2.265,00 m², Distanz zur Autobahn: 7.00, Distanz vom Zentrum: 3.00
Anbieter der Immobilie
Densch & Schmidt Immobilien GmbH
Am Fördeufer 4, 24944 Flensburg

Online-ID: 2mcus5r
Referenznummer: 23274TF
Finde Angebote wie dieses
Hier geht es zu unserem Impressum, den Allgemeinen Geschäftsbedingungen, den Hinweisen zum Datenschutz und nutzungsbasierter Online-Werbung.