
BIDDEX Immobiliengesellschaft mbH
Frau Dana Zakai
+49 ···
Nr. anzeigenPreise & Kosten
zzgl. Nebenkosten
in Warmmiete enthalten
Kaution
11.178 €
Provision für Mieter
3 x Nettokalmieten zzgl. MwSt.
3 Monatskaltmieten zzgl. der gesetzlichen MwSt. Die ausgewiesene Maklerprovision ist mit Abschluss des Mietvertrages verdient und fällig.
Warum sehe ich diese Anzeige? – Du siehst diese Anzeige basierend auf Ihrer Navigation auf unserer Website und den Suchkriterien, die du verwendet hast.
Lage
Die Immobilie befindet sich in der Großbeerenstraße im Herzen von Berlin-Kreuzberg, einer der begehrtesten und lebendigsten Lagen der Hauptstadt. Die Straße liegt in unmittelbarer Nähe zum Mehringdamm sowie zum U-Bahnhof Mehringdamm (U6, U7), wodurch eine ausgezeichnete Anbindung an den öffentlichen Nahverkehr gewährleistet...
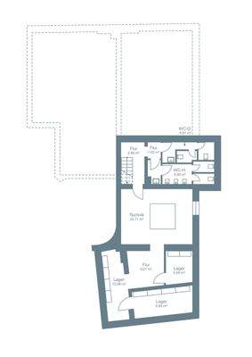
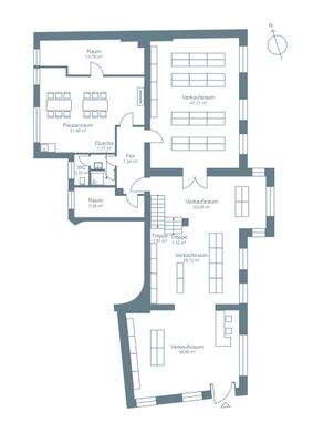
Die Ladenfläche
Kategorie
Laden
Baujahr
1900
Bezug
sofort
Erdgeschoss
Energie & Heizung
Warum sehe ich diese Anzeige? – Du siehst diese Anzeige basierend auf Ihrer Navigation auf unserer Website und den Suchkriterien, die du verwendet hast.
Wärme
Energieausweistyp
Bedarfsausweis
Gebäudetyp
Nicht-Wohngebäude
Wesentliche Energieträger
Fernwärme
Endenergiebedarf (Wärme)
90,00 kWh/(m²·a)
Weitere Energiedaten
Energieträger
Fernwärme
Details
Objektbeschreibung
Zur Vermietung steht eine vielseitig nutzbare Einzelhandels- oder Gastronomiefläche in der Großbeerenstraße 10 in Berlin-Kreuzberg. Die Gesamtfläche umfasst ca. 207 m² und bietet flexible Nutzungsmöglichkeiten.
Besonderes Highlight ist eine separierte Außenfläche, die sich ideal zur Erweiterung des Konzepts oder für...
Weitere Informationen
Sonstiges
Auf die ausgewiesene Warmmiete fällt zusätzlich die gesetzliche Mehrwertsteuer in Höhe von 19 % an.
Bei Anmietung ist zudem eine notarielle Zwangsvollstreckungsunterwerfung erforderlich.
Stichworte
Gesamtfläche: 281,53 m², Bundesland: Berlin, 4 Etagen, Zustand nach Vereinbarung
Dokumente
Anbieter der Immobilie
BIDDEX Immobiliengesellschaft mbH
Marburger Straße 17, 10789 Berlin
Online-ID: 2mcvh5h
Referenznummer: C10198/2
Finde Angebote wie dieses
Hier geht es zu unserem Impressum, den Allgemeinen Geschäftsbedingungen, den Hinweisen zum Datenschutz und nutzungsbasierter Online-Werbung.