Harald Dördrechter ImmobilienConsulting

Herr Harald Dördrechter

ATTRAKTIVE BÜRO-/ LAGERFLÄCHE MIT ROLLTOR - provisionsfrei

€ 3.950
Preis/m²
350 m²
Fläche ca.
k.A.
Teilbare Fläche
k.A.
Grundstücksfl.

Der Anbieter dieses Objekts hat gegenüber der AVIV Germany GmbH als Betreiber dieses Online-Marktplatzes erklärt, nicht als Unternehmer im Sinne des § 1 KSchG zu handeln. Die im Verbraucherschutzrecht der Union verankerten Verbraucherrechte (insbesondere Informationspflichten und Rücktritts- bzw. Widerrufsrechte) finden auf den Vertrag zwischen dem Anbieter des Objekts und Ihnen (dem Interessenten) keine Anwendung.

Provisionsfrei
Gewerblicher Anbieter

Der Anbieter dieses Objekts hat gegenüber der AVIV Germany GmbH als Betreiber dieses Online-Marktplatzes erklärt, als Unternehmer im Sinne des § 1 KSchG zu handeln.

AdresseStraße nicht freigegeben
81829 München 
(Trudering-Riem)
Auf Karte ansehen

Preise & Kosten

Preis/m² € 3.950 Nebenkosten € 900

Provision für Mieter

provisionsfrei

Lage

München - Ost, in einem beliebten und belebten Gewerbegebiet, gute Infrastruktur, Autobahn "A94" schnell erreichbar, S- und U-Bahn-Station "Trudering" sowie U-Bahn-Station "Am Moosfeld" (U2, U7) wenige Gehminuten, Buslinien 185,192,194 sind 300m entfernt

Die Industriefläche

Kategorie

Lagerhalle

Baujahr

1989

Bezug

kurzfristig

Derzeitige Nutzung

vermietet

Energie & Heizung

Weitere Energiedaten

Heizungsart

Zentralheizung

Details

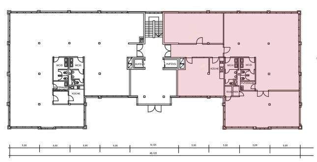
Objektbeschreibung

Attraktives, funktionales Bürogebäude in Topzustand, freundliches und helles Treppenhaus, schöner Eingangsbereich, Parkplätze und Grünflächen im Außenbereich, Umfahrungsmöglichkeit und ebenerdige Anlieferung über ein großes Rolltor. TG-Einzelplätze à € 65,00 anmietbar.

Ausstattung

- Attraktives, funktionales Bürogebäude in Topzustand,- freundliches und helles Treppenhaus - schöner Eingangsbereich - Parkplätze und Grünflächen im Außenbereich - Umfahrungsmöglichkeit - ebenerdige Anlieferung über ein großes Rolltor - Bodentanks - außenliegender Sonnenschutz - getr. WCs D/H - BodenbelagTeppich und Laminat...

Mehr anzeigen

Weitere Informationen

Sonstiges
Falls Sie in unseren Exposés noch nicht Ihre ideale Bürolösung gefunden haben, zögern Sie nicht, sich mit uns in Verbindung zu setzen. Sie erreichen uns per E-Mail unter info@hdic.de oder telefonisch unter 0171 3802649. Teilen Sie uns Ihr genaues Suchprofil mit, und wir setzen unsere Expertise ein, um aus über...

Mehr anzeigen

Anbieter der Immobilie

Partner

Harald Dördrechter ImmobilienConsulting

Schluchtweg 23, 82340 Feldafing

user

Herr Harald Dördrechter

Dein Ansprechpartner

Anbieter-Website Anbieter-Profil Anbieter-Impressum

Online-ID: 2mcw95n

Referenznummer: 8362

Finde Angebote wie dieses

imageimageimage

Hier geht es zu unserem Impressum, den Allgemeinen Geschäftsbedingungen, den Hinweisen zum Datenschutz und nutzungsbasierter Online-Werbung.