

Innovativ Immobilien
Herr Sascha Deutsch
068 ···
Nr. anzeigenPreise & Kosten
Kaution
4.000,00
Provision für Mieter
2 Monatsmiete zzgl. Mehrwertsteuer zzgl. MwSt.
Warum sehe ich diese Anzeige? – Du siehst diese Anzeige basierend auf Ihrer Navigation auf unserer Website und den Suchkriterien, die du verwendet hast.
Lage
Die Bürofläche befindet sich in der charmanten Gemeinde Schiffweiler im Saarland, einer Region, die sowohl durch ihre ruhige, naturnahe Umgebung als auch durch ihre hervorragende Infrastruktur überzeugt. Das Objekt liegt in einer gut erreichbaren Gewerbegegend, die sowohl für Geschäftsreisende als auch für Kunden und...
Büro-/Praxisfläche
Kategorie
Bürofläche
Baujahr
2018
Bezug
sofort
Details
Objektbeschreibung
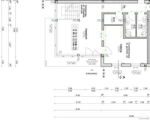
Erleben Sie moderne gemeinschaftliche Arbeitswelten in Schiffweiler! Diese neuwertige Bürofläche mit einer Pauschalwarmmiete, erbaut im Jahr 2018, bietet Ihnen repräsentative Geschäftsräume in einem dynamischen Umfeld. Aufgeteilt in vier helle Zimmer im Obergeschoss und einem Wartebereich als Foyer mit WCs im Erdgeschoss...
Ausstattung
+ Bauweise
Massivhaus 35 er Ytong - Fassade Scheibenputz
+ Bodenbeläge
Fliesen in den WCs, Fluren, Foyer & Küche, Teppich in den Büros
+ Wand Beläge
Putz
+ Bad / Sanitär
WCs für Damen und Herren jeweils im EG & OG
+ Heizung
-Wärmepumpe mit PV und Unterstützung Gasheizung...
Weitere Informationen
Sonstiges
Alle Angaben beruhen auf uns vorliegenden Informationen des Auftraggebers nach besten Wissen und Gewissen. Kommt es aufgrund unserer Tätigkeit zum Abschluss eines Vertrages, haben wir Anspruch auf Zahlung der Provision. Wir weisen auf unsere Allgemeinen Geschäftsbedingungen hin. Das GWG verpflichtet uns, mit...
Anbieter der Immobilie
Innovativ Immobilien
Marktstraße 24, 66346 Püttlingen

Online-ID: 2mcwh5x
Referenznummer: II-SD-2025-596
Finde Angebote wie dieses
Hier geht es zu unserem Impressum, den Allgemeinen Geschäftsbedingungen, den Hinweisen zum Datenschutz und nutzungsbasierter Online-Werbung.