
Mein Guter Makler GmbH
Herr Dennis Hartwig
042 ···
Nr. anzeigenPreise & Kosten
zzgl. Nebenkosten
Kaution
2.500 €
Warum sehe ich diese Anzeige? – Du siehst diese Anzeige basierend auf Ihrer Navigation auf unserer Website und den Suchkriterien, die du verwendet hast.
Lage
Die Wohnung befindet sich im beliebten Bremer Stadtteil Horn-Lehe, einer der begehrtesten Wohnlagen im Bremer Nordosten. Das Umfeld besticht durch eine gelungene Mischung aus urbanem Komfort, grüner Umgebung und einem hohen Maß an Lebensqualität.
Horn-Lehe ist bekannt für seine gepflegten Wohnstraßen, die überwiegend...
Die Wohnung
Wohnungslage
4. Geschoss
Bezug
01.02.2026
Wohnanlage
Energie & Heizung
Warum sehe ich diese Anzeige? – Du siehst diese Anzeige basierend auf Ihrer Navigation auf unserer Website und den Suchkriterien, die du verwendet hast.
Energieausweistyp
Bedarfsausweis
Gebäudetyp
Wohngebäude
Wesentliche Energieträger
Fernwärme
Gültigkeit
10.11.2023 bis 09.11.2033
Effizienzklasse
E
Endenergiebedarf
136,00 kWh/(m²·a)
Weitere Energiedaten
Energieträger
Fernwärme
Details
Objektbeschreibung
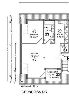
Die angebotene Wohnung befindet sich im 2023 neu gebauten Dachgeschosses des ruhig gelegenen Mehrparteienhauses im Bremer Stadtteil Horn-Lehe. Mit einer Wohnfläche von ca. 65 qm ist die Wohnung sehr hell und offen gestaltet.
Ein geräumiges und lichtdurchflutetes Wohnzimmer bietet Zugang zu der Wohnung. Hier findet...
Ausstattung
- Neubau-Dachgeschosswohnung (Baujahr 2023) in ruhiger Lage von Bremen-Horn-Lehe
- 2-Zimmer-Wohnung
- Ca. 65 m² Wohnfläche
- Freigelegte Holzbalken sorgen für besonderen Charme
- Südwestlich ausgerichtete Loggia
- Moderne Einbauküche inkl. Elektrogeräte und Geschirrspüler
- Tageslichtbad mit Regendusche und...
Weitere Informationen
Stichworte
Stellplatz vorhanden, Anzahl der Schlafzimmer: 1, Anzahl der Badezimmer: 1, Anzahl Loggias: 1, Bundesland: Bremen, modernisiert: 2023
Anbieter der Immobilie
Online-ID: 2mcyg5t
Referenznummer: 1355
Finde Angebote wie dieses
Hier geht es zu unserem Impressum, den Allgemeinen Geschäftsbedingungen, den Hinweisen zum Datenschutz und nutzungsbasierter Online-Werbung.