

FALC Immobilien Pforzheim
Herr Philipp Ringwald
+49 ···
Nr. anzeigenPreise & Kosten
Provision für Käufer
keine Käuferprovision
Lage
Diese Immobilie in Ötisheim bietet eine hervorragende Lage für Familien und Berufstätige, die Wert auf eine gute Infrastruktur und ein angenehmes Wohnumfeld legen. Die Umgebung ist geprägt von einer ruhigen, aber dennoch zentralen Lage, die alle wichtigen Einrichtungen des täglichen Bedarfs in unmittelbarer Nähe...
Das Haus
Kategorie
Einfamilienhaus
Baujahr
1979
Bezug
sofort
Energie & Heizung
Warum sehe ich diese Anzeige? – Du siehst diese Anzeige basierend auf Ihrer Navigation auf unserer Website und den Suchkriterien, die du verwendet hast.
Energieausweistyp
Bedarfsausweis
Gebäudetyp
Wohngebäude
Wesentliche Energieträger
Gas
Gültigkeit
10.11.2025 bis 10.11.2035
Effizienzklasse
G
Endenergiebedarf
237,50 kWh/(m²·a)
Weitere Energiedaten
Energieträger
Gas
Heizungsart
Fußbodenheizung, offener Kamin
Details
Objektbeschreibung
***Nach dem Stellen einer Anfrage erhalten Sie automatisiert unser ausführliches Exposé mit Adresse, allen Bildern und dem Zugang zum 360°-Rundgang der Immobilie.***
Dieser großzügige Bungalow in ruhiger Wohnlage von Ötisheim bietet auf einer Ebene ein komfortables und familienfreundliches Wohnerlebnis. Das Wohnhaus...
Ausstattung
Baujahr 1979
Wohnfläche ca. 155 m²
Nutzfläche ca. 168 m²
Grundstück ca. 528 m²
Highlights
- Fußbodenheizung
- Wohnzimmer mit Kaminofen
- Moderne neuwertige Einbauküche mit Essbereich
- großzügige Wohn-, Schlaf- & Hobbybereiche
- Garten und Terrasse mit idealer Größe
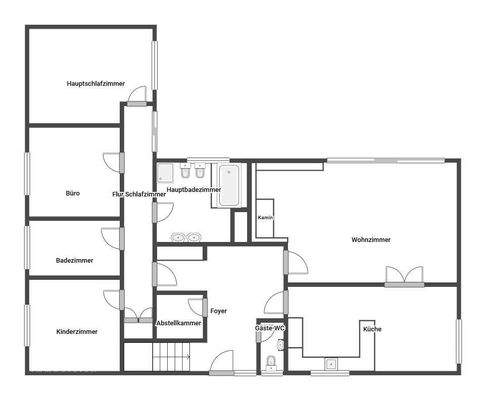
Erdgeschoss
-...
Preisinformation
3 Garagenstellplätze
Weitere Informationen
Sonstiges
Um Ihre Anfrage/Ihren Besichtigungswunsch bearbeiten zu können, benötigen wir zuerst IMMER eine schriftliche Anfrage über den Button "Anbieter kontaktieren" im Immobilienportal!
Bei vollständiger Angabe Ihrer Kontaktdaten (ADRESSE und RUFNUMMER) erhalten Sie umgehend unser Exposé.
Die...
Anbieter der Immobilie

Online-ID: 2mcyn59
Referenznummer: FALC-PRi-59913
Finde Angebote wie dieses
Hier geht es zu unserem Impressum, den Allgemeinen Geschäftsbedingungen, den Hinweisen zum Datenschutz und nutzungsbasierter Online-Werbung.