
Rahn & Company Real Estate UG
Robert Rahn
017 ···
Nr. anzeigenPreise & Kosten
Provision für Käufer
7,14
zzgl. 7,14 % Provison inkl 19% MwSt
Lage
Die Motzstraße 28 befindet sich im Herzen des Berliner Ortsteils Schöneberg, im sogenannten Nollendorfkiez - einem lebendigen und kulturell vielfältigen Stadtviertel. Dieser Kiez ist bekannt für seine Mischung aus urbanem Leben, historischer Architektur und einer offenen, internationalen Atmosphäre. Die Umgebung zeichnet sich...
Gastronomie/Hotel
Kategorie
Restaurant
Baujahr
1900
Derzeitige Nutzung
vermietet
Energie & Heizung
Warum sehe ich diese Anzeige? – Du siehst diese Anzeige basierend auf Ihrer Navigation auf unserer Website und den Suchkriterien, die du verwendet hast.
Wärme
Energieausweistyp
Bedarfsausweis
Gebäudetyp
Nicht-Wohngebäude
Wesentliche Energieträger
Gas
Endenergiebedarf (Wärme)
98,40 kWh/(m²·a)
Weitere Energiedaten
Energieträger
Gas
Heizungsart
Zentralheizung
Details
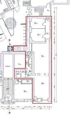
Objektbeschreibung
Attraktive Gewerbeeinheit mit langfristigem Mietvertrag Zum Verkauf steht eine vermietete Gewerbeeinheit mit ca. 116 m² sowie einem separaten Lager von ca. 83,5 m², aktuell als Restaurant genutzt. Die Einheit verfügt über vier Räume und bietet flexible Nutzungsmöglichkeiten. Der Mietvertrag läuft noch 8 Jahre und ist mit...
Ausstattung
Attraktive Gewerbeeinheit mit langfristigem Mietvertrag Zum Verkauf steht eine vermietete Gewerbeeinheit mit ca. 116 m² sowie einem separaten Lager von ca. 83,5 m², aktuell als Restaurant genutzt. Die Einheit verfügt über vier Räume und bietet flexible Nutzungsmöglichkeiten. Der Mietvertrag läuft noch 8 Jahre und ist mit...
Weitere Informationen
Stichworte
Gesamtfläche: 200,00 m², Bundesland: Berlin, 5 Etagen
Anbieter der Immobilie
Rahn & Company Real Estate UG
Olivaer Platz 17, 10707 Charlottenburg-Wilmersdorf
Online-ID: 2md375s
Referenznummer: K10 TE01
Finde Angebote wie dieses
Hier geht es zu unserem Impressum, den Allgemeinen Geschäftsbedingungen, den Hinweisen zum Datenschutz und nutzungsbasierter Online-Werbung.