
ÄRZTE & APOTHEKER IMMOBILIEN
Herr Alexander Rixen
004 ···
Nr. anzeigenPreise & Kosten
Provision für Käufer
3,00 % inkl. MwSt.
Lage
Dieses Neubauprojekt liegt in einer der begehrtesten Wohnlagen Hamburgs - im exklusiven Stadtteil Othmarschen, einem der traditionsreichen Elbvororte im Bezirk Altona. In ruhiger Sackgassenlage ohne Durchgangsverkehr genießen Sie hier ein hohes Maß an Privatsphäre und Wohnqualität. Umgeben von altem Baumbestand und gepflegten...
Die Wohnung
Wohnungslage
Erdgeschoss
Bezug
Nach Absprache
Wohnanlage
Energie & Heizung
Warum sehe ich diese Anzeige? – Du siehst diese Anzeige basierend auf Ihrer Navigation auf unserer Website und den Suchkriterien, die du verwendet hast.
Energieausweistyp
Bedarfsausweis
Gebäudetyp
Wohngebäude
Baujahr laut Energieausweis
2026
Wesentliche Energieträger
LUFTWP
Gültigkeit
bis 28.11.2032
Effizienzklasse
A+
Endenergiebedarf
13,66 kWh/(m²·a)
Weitere Energiedaten
Energieträger
Solar
Heizungsart
Fußbodenheizung, Luft-/Wasser-Wärmepumpe, offener Kamin
Details
Objektbeschreibung
Exklusive Lage, Seeblick, moderne & großzügige Räume vereinen sich im Elbgarten...
Diese Erdgeschosswohnung bietet auf einer Ebene alles, was man sich für komfortables Wohnen wünscht - durchdacht geplant, hochwertig ausgeführt und mit einer Großzügigkeit, die im Alltag wirklich spürbar ist.
Der offene Wohn-...
Ausstattung
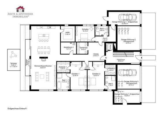
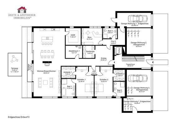
- Durchdachte Raumaufteilung ermöglicht vielfältige Nutzungsmöglichkeiten, wie aus den beiden Grundrissen beispielhaft verdeutlicht wird
- Bodentiefe Fenster und große Glasfronten sorgen für helle, freundliche Räume
- Individuelle Auswahl hochwertiger Böden, Türen, Fliesen & Armaturen
- Großzügiges...
Preisinformation
2 Garagenstellplätze, Kaufpreis je: 49.000,00 EUR
Weitere Informationen
Sonstiges
Vielen Dank für Ihr Interesse an der von uns angebotenen Immobilie.
Bitte haben Sie Verständnis dafür, dass wir unseren Auftraggebern Diskretion zugesagt haben und Sie daher um die Angabe Ihrer vollständigen Kontaktdaten inkl. Ihrer Telefonnummer bitten müssen.
Gern senden wir Ihnen anschließend ein...
Anbieter der Immobilie
ÄRZTE & APOTHEKER IMMOBILIEN
Lindenstr. 29, 21335 Lüneburg
Online-ID: 2md3c5z
Referenznummer: 252798-EG-2
Finde Angebote wie dieses
Hier geht es zu unserem Impressum, den Allgemeinen Geschäftsbedingungen, den Hinweisen zum Datenschutz und nutzungsbasierter Online-Werbung.