
Inseriert auf 123provisionsfrei.de
Christian Geiss
+49 ···
Nr. anzeigenPreise & Kosten
Provision für Käufer
provisionsfrei
Lage
DAHOAM IN KIRCHBERG IM WALD
Die naturverbundene Heimat direkt vor der Haustüre und dennoch zentrumsnah. Hier genießen Sie die Naturnähe mit allen Vorzügen des modernen Wohnens. ZENTRALE LAGE Einkaufsmöglichkeiten mit Bäcker, Metzger und Apotheke befinden sich in unmittelbarer Nähe. Eine medizinische und ärztliche...
Die Wohnung
Kategorie
Apartment
Wohnanlage
Details
Objektbeschreibung
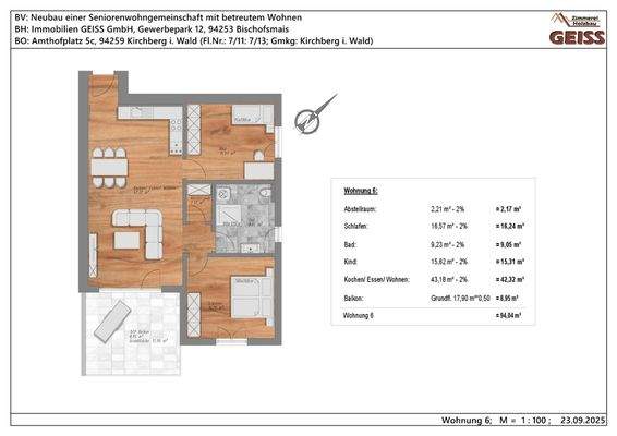
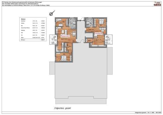
Preis und Wohnfläche bezieht sich auf Wohnung Nr. 7.
Weitere Wohnungen siehe weiter unten im Text.
Unser Neubauprojekt "Betreutes Wohnen in Kirchberg im Wald" steht für ökologisch und modern.
Die Wohnanlage mit insgesamt 8 betreuten Wohneinheiten wird für Sie im Zentrum von Kirchberg im Wald komplett barrierefrei...
Ausstattung
BETREUTES WOHNEN AM AMTHOF BEDEUTET
? Selbstbestimmt und sicher wohnen
? Geborgen und mit Unterstützung bei Bedarf
Wohnen im eigenen betreuten Zuhause.
Der Grundgedanke ist, dass jeder in seinen "eigenen vier Wänden" lebt und den Alltag mehr oder weniger alleine bzw. im Hausverbund organisiert.
Als...
Weitere Informationen
Sonstiges
Bei Interesse informieren wir Sie gerne ausführlicher unter 09920/9033300.
Wir freuen uns auf Sie! Energieausweis liegt zur Besichtigung vor.
Anbieter der Immobilie
Inseriert auf 123provisionsfrei.de
Helmstedter Str. 16, 38448 Wolfsburg
Online-ID: 2md5b5e
Referenznummer: zqwrHkmpuSIewS8qT0IGe-6#RuxkW
Finde Angebote wie dieses
Hier geht es zu unserem Impressum, den Allgemeinen Geschäftsbedingungen, den Hinweisen zum Datenschutz und nutzungsbasierter Online-Werbung.