

Bauteam GmbH
Herr Roman Bürger
0 3 ···
Nr. anzeigenPreise & Kosten
zzgl. Nebenkosten
Kaution
3 Nettokaltmieten
Warum sehe ich diese Anzeige? – Du siehst diese Anzeige basierend auf Ihrer Navigation auf unserer Website und den Suchkriterien, die du verwendet hast.
Lage
Das Ostseeheilbad Zingst ist eine amtsfreie Gemeinde im Nordwesten des Landkreises Vorpommern-Rügen in Mecklenburg-Vorpommern, Landesteil Vorpommern. Zur Gemeinde gehört fast die gesamte gleichnamige Halbinsel sowie die ihr südlich vorgelagerten Inseln Kirr und Barther Oie. Die Gemeinde ist seit 2002 ein staatlich anerkanntes...
Das Haus
Kategorie
Einfamilienhaus
Geschosse
1 Geschoss
Bezug
01.03.2026
Derzeitige Nutzung
frei
Energie & Heizung
Warum sehe ich diese Anzeige? – Du siehst diese Anzeige basierend auf Ihrer Navigation auf unserer Website und den Suchkriterien, die du verwendet hast.
Energieausweistyp
Bedarfsausweis
Gebäudetyp
Wohngebäude
Baujahr laut Energieausweis
1978
Wesentliche Energieträger
Gas
Gültigkeit
12.04.2023 bis 12.04.2033
Effizienzklasse
F
Endenergiebedarf
169,90 kWh/(m²·a)
Weitere Energiedaten
Haustyp
Massivhaus
Energieträger
Elektro, Gas
Heizungsart
Ofen, offener Kamin, Zentralheizung
Details
Objektbeschreibung
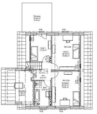
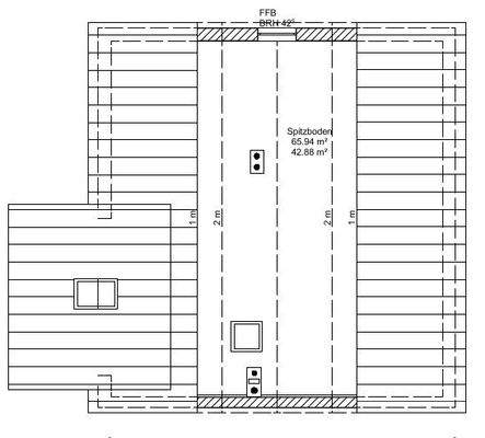
Zur Vermietung steht dieses liebevoll gepflegte Einfamilienhaus mit ca. 203,50 m² Wohnfläche und ca. 774 m² Grundstücksfläche in Hafennähe von Zingst.
+Erdgeschoss+
Im Erdgeschoss finden Sie das helle und großzügig geschnittene Wohn- und Esszimmer mit einem Kachelofen. Die Küche, die ebenfalls über einen Kachelofen...
Ausstattung
Die Aufteilung der Immobilie gestaltet sich wie folgt:
Erdgeschoss:
- großes Wohn- bzw. Esszimmer mit Ofen und Kamineinsatz
- zweites großes Wohnzimmer
- Küche mit Einbauküche
- Gäste WC mit ebenerdiger Dusche
- Veranda/ Wintergarten
- Speisekammer
- Haustechnikraum
- Windfang mit...
Weitere Informationen
Besichtigungstermine:
Hat unser Angebot Ihr Interesse geweckt, dann zögern Sie nicht und vereinbaren gleich einen Besichtigungstermin. Wir sind gerne für Sie da!
Sie erreichen uns Montag-Freitag von 8.00-16.00 Uhr.
Besichtigungen nur bei ernsthaftem Interesse und nach vorheriger Absprache...
Anbieter der Immobilie
Bauteam GmbH
Bauhofstraße 1 E, 18439 Stralsund

Online-ID: 2md5e57
Referenznummer: EFHZIJS15/17VERM
Finde Angebote wie dieses
Hier geht es zu unserem Impressum, den Allgemeinen Geschäftsbedingungen, den Hinweisen zum Datenschutz und nutzungsbasierter Online-Werbung.