
McMakler GmbH
Ihr McMakler Team
080 ···
Nr. anzeigenPreise & Kosten
Provision für Käufer
Die Provision i.H.v. 3,57 % inkl. MwSt. ist mit Kaufvertragsbeurkundung fällig, sofern der Verkaufspreis über 83.000,00 € liegt.
Liegt der Verkaufspreis dagegen bei/unter 83. Weitere Informationen siehe Provisionshinweis.
Lage
Lage: Die naturnahe Lage bietet eine grüne Umgebung mit vielen Naherholungsmöglichkeiten
Bildung und Betreuung: 3 Kindergärten und 2 Schulen in fußläufiger Entfernung
Nahversorgung: Bequem in max. 5 Minuten kaufen: Supermarkt, Apotheke und Postfiliale
Anbindung: Nächster Bahnhof fußläufig, Autobahn in einiger...
Das Haus
Kategorie
Einfamilienhaus
Baujahr
1962
Bezug
ab sofort
Energie & Heizung
Warum sehe ich diese Anzeige? – Du siehst diese Anzeige basierend auf Ihrer Navigation auf unserer Website und den Suchkriterien, die du verwendet hast.
Energieausweistyp
Bedarfsausweis
Gebäudetyp
Wohngebäude
Baujahr laut Energieausweis
1992
Wesentliche Energieträger
Öl
Effizienzklasse
H
Endenergiebedarf
327,60 kWh/(m²·a)
Weitere Energiedaten
Energieträger
Öl
Heizungsart
Ofen
Details
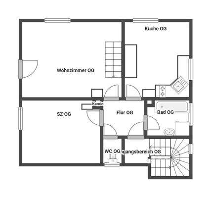
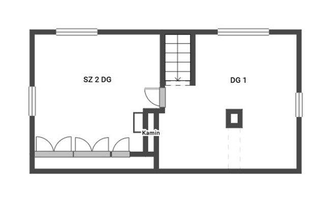
Objektbeschreibung
Objektnr: 1064345
Dieses charmante Einfamilienhaus aus dem Jahr 1962 bietet auf rund 135?m² Wohnfläche über drei Etagen (Erdgeschoss, Obergeschoss und Dachgeschoss) ein komfortables und großzügiges Zuhause. Mit insgesamt sechs Zimmern und zwei Wohnküchen eignet sich die Immobilie ideal für Familien oder ein...
Ausstattung
+ In ruhiger Umgebung in naturnaher Lage von Bobingen, beschaulich in einer Nebenstraße mit eigener Zufahrt und einer Garage bebaut
+ Tolle Außenbereiche: Der Süd-Garten auf ca. 551 m² großzügigem Grund lädt zum Verweilen ein, etwa im eigenen Gartenhaus - eine Terrasse und ein Balkon bereichern das Erlebnis
+ Das...
Weitere Informationen
Provisionshinweis
Die Provision i.H.v. 3,57 % inkl. MwSt. ist mit Kaufvertragsbeurkundung fällig, sofern der Verkaufspreis über 83.000,00 € liegt.
Liegt der Verkaufspreis dagegen bei/unter 83.000,00 €, ist die fest vereinbarte Mindestprovision i.H.v. mind. 5.950,00 € inkl. MwSt. mit Kaufvertragsbeurkundung fällig...
Anbieter der Immobilie
McMakler GmbH
Am Postbahnhof 17, 10243 Berlin
Online-ID: 2md5y5j
Referenznummer: c41f5a74c3
Finde Angebote wie dieses
Hier geht es zu unserem Impressum, den Allgemeinen Geschäftsbedingungen, den Hinweisen zum Datenschutz und nutzungsbasierter Online-Werbung.