
Crozilla.com
Dogma nekretnine
+38 ···
Nr. anzeigenPreise & Kosten
Provision für Käufer
Bitte beachte, das Angebot kann bei Vertragsabschluss die Zahlung einer Provision beinhalten. Weitere Informationen erhältst Du vom Anbieter.
Die Immobilie
Zu diesem Angebot wurden vom Anbieter keine weiteren Daten hinterlegt. Für weitere Informationen bitte den Anbieter kontaktieren.
Nach Informationen fragenDetails
Objektbeschreibung
ID CODE: DA1769
Dogma Dalmacija
Tel: 021/293-201; 022/646-361; 023/551-400
E-mail: info@dogma-nekretnine.com
www.dogma-nekretnine.com
Weitere Informationen
Stichworte
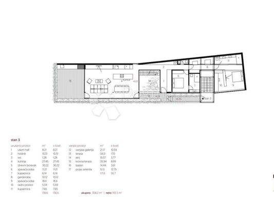
Anzahl der Schlafzimmer: 2, Anzahl der Badezimmer: 2, 1 Etagen
Anbieter der Immobilie
Crozilla.com
Nova cesta 60, 10000 ZAGREB
Online-ID: 2md675l
Referenznummer: 18673238_1
Finde Angebote wie dieses
Hier geht es zu unserem Impressum, den Allgemeinen Geschäftsbedingungen, den Hinweisen zum Datenschutz und nutzungsbasierter Online-Werbung.