
VON POLL IMMOBILIEN Koblenz - Florian Bender
Team VON POLL IMMOBILIEN Shop Koblenz
+49 ···
Nr. anzeigenPreise & Kosten
Provision für Käufer
Käuferprovision beträgt 3,57 % (inkl. MwSt.) des beurkundeten Kaufpreises
Lage
Am weltbekannten "Deutschen Eck", wo sich Rhein und Mosel nach kurvenreichem Lauf treffen, liegt Koblenz, eine der schönsten und ältesten Städte Deutschlands. Vor über 2000 Jahren gegründet, nannten sie die Römer einst liebevoll "Confluentes". Vier Mittelgebirge umrahmen die Stadt und bilden mit Wald-, Grün- und Wasserflächen...
Die Wohnung
Kategorie
Maisonette
Wohnanlage
Energie & Heizung
Warum sehe ich diese Anzeige? – Du siehst diese Anzeige basierend auf Ihrer Navigation auf unserer Website und den Suchkriterien, die du verwendet hast.
Energieausweistyp
Verbrauchsausweis
Gebäudetyp
Wohngebäude
Baujahr laut Energieausweis
1905
Wesentliche Energieträger
ERDGAS_LEICHT
Gültigkeit
bis 22.07.2035
Effizienzklasse
C
Endenergieverbrauch
78,00 kWh/(m²·a)
Weitere Energiedaten
Energieträger
Gas, Solar
Heizungsart
Zentralheizung
Details
Objektbeschreibung
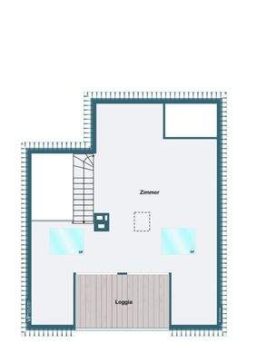
Auf ca. 110 m² Wohnfläche, in den Obergeschossen einer 3-Parteien-Altbauvilla, befindet sich diese tolle Maisonettewohnung.
Das Haus wurde 2011 kernsaniert und die Wohnung ist zeitlos, modern ausgestattet.
Highlight ist der Balkon mit Festungsblick.
Das Haus verfügt über eine private Zufahrt mit großzügigem Vorplatz...
Preisinformation
1 Carportplatz
Weitere Informationen
Sonstiges
Es liegt ein Energieverbrauchsausweis vor.
Dieser ist gültig bis 22.7.2035.
Endenergieverbrauch beträgt 78.00 kwh/(m²*a).
Wesentlicher Energieträger der Heizung ist Erdgas leicht.
Das Baujahr des Objekts lt. Energieausweis ist 1905.
Die Energieeffizienzklasse ist C.
GELDWÄSCHE: Als...
Anbieter der Immobilie
VON POLL IMMOBILIEN Koblenz - Florian Bender
Casinostraße 3-5, 56068 Koblenz am Rhein
Online-ID: 2md6g53
Referenznummer: 25014093
Finde Angebote wie dieses
Weitere Immobilien
Hier geht es zu unserem Impressum, den Allgemeinen Geschäftsbedingungen, den Hinweisen zum Datenschutz und nutzungsbasierter Online-Werbung.