

Zeising Real Estate Immobilien
Herr Reiner Zeising
091 ···
Nr. anzeigenPreise & Kosten
Provision für Käufer
Die Courtage in Höhe von 3,57% vom Kaufpreis, inkl. der gesetzlichen Mehrwertsteuer ist mit der notariellen Beurkundung des Kaufvertrages
verdient und fällig.
Lage
Kraftshof ist ein begehrter Ortsteil im Nürnberger Norden. Von hier aus gelangt man schnell sowohl nach Erlangen und auch ins Stadtzentrum von Nürnberg und Fürth.
Es bestehen vielfältige Einkaufsmöglichkeiten für den täglichen Bedarf.
Im nahen Reichswald der in wenigen Minuten zu erreichen ist können entspannte...
Das Haus
Kategorie
Einfamilienhaus
Baujahr
1975
Bezug
sofort
Derzeitige Nutzung
frei
Energie & Heizung
Warum sehe ich diese Anzeige? – Du siehst diese Anzeige basierend auf Ihrer Navigation auf unserer Website und den Suchkriterien, die du verwendet hast.
Energieausweistyp
Bedarfsausweis
Gebäudetyp
Wohngebäude
Baujahr laut Energieausweis
1975
Wesentliche Energieträger
Öl
Gültigkeit
16.10.2013 bis 26.10.2035
Effizienzklasse
G
Endenergiebedarf
223,50 kWh/(m²·a)
Weitere Energiedaten
Energieträger
Öl
Heizungsart
offener Kamin, Zentralheizung
Details
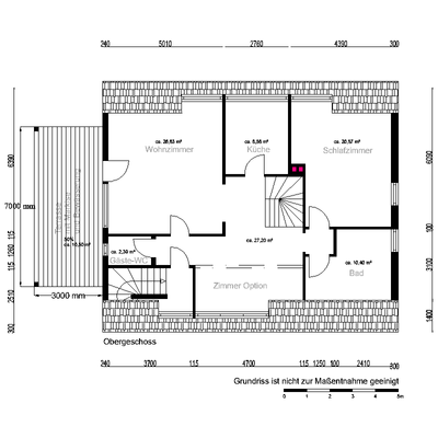
Objektbeschreibung
Dieses Einfamilienhaus wurde in massiver Bauweise errichtet und überzeugt durch seinen gepflegten Zustand. In allen Etagen befinden sich durchdachte Grundrisse.
Insgesamt stehen ca. 234 m² Wohnfläche zuzüglich weiterer ca. 100 m² Nutzfläche im Souterrain zur Verfügung. Das gesamte lichtdurchflutete Obergeschoss wurde...
Ausstattung
Der gesamte OG Bereich wurde erst vor einigen Jahren komplett umgebaut und befindet sich im Neuzustand. Einschließlich einer eindrucksvollen Dachterrasse in Süd-West Ausrichtung.
Das gesamte Gebäude ist unterkellert, deren Räume sind trocken und ohne Feuchtigkeit.
Weitere Informationen
Bitte beachten Sie, dass wir weitere Informationen über diese Immobilie ausschließlich nur bei Vorliegen Ihrer vollständigen Kontaktdaten einschließlich Ihrer Telefonnummer geben können. Sollte diese Immobilie Ihr Interesse geweckt haben, so rufen Sie uns bitte an oder schreiben Sie uns eine E-Mail.
Wir freuen uns über...
Dokumente
Anbieter der Immobilie
Zeising Real Estate Immobilien
Preuschlwiesen 1, 91227 Leinburg

Online-ID: 2md6p5f
Finde Angebote wie dieses
Hier geht es zu unserem Impressum, den Allgemeinen Geschäftsbedingungen, den Hinweisen zum Datenschutz und nutzungsbasierter Online-Werbung.