
Volksbank Jade-Weser Immobilien GmbH
Frau Corinna Müller
004 ···
Nr. anzeigenPreise & Kosten
Provision für Käufer
3,57% inkl. MwSt.
Lage
Schortens ist eine Stadt im Landkreis Friesland in Niedersachsen. Der Ort erhielt 2005 die Stadtrechte und ist seitdem nach Varel die zweitgrößte Stadt im Landkreis Friesland. Seit dem 6. Dezember 2011 ist die Stadt staatlich anerkannter Erholungsort.
Die Stadt umfasst die zwölf Stadtteile Schortens, Heidmühle...
Das Haus
Kategorie
Einfamilienhaus
Baujahr
1976
Bezug
Vereinbarung
Energie & Heizung
Warum sehe ich diese Anzeige? – Du siehst diese Anzeige basierend auf Ihrer Navigation auf unserer Website und den Suchkriterien, die du verwendet hast.
Energieausweistyp
Bedarfsausweis
Gebäudetyp
Wohngebäude
Baujahr laut Energieausweis
2002
Wesentliche Energieträger
GAS
Gültigkeit
bis 24.11.2035
Effizienzklasse
E
Endenergiebedarf
153,90 kWh/(m²·a)
Weitere Energiedaten
Energieträger
Gas
Heizungsart
offener Kamin
Details
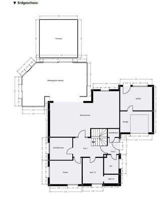
Objektbeschreibung
Dieses charmante Einfamilienhaus befindet sich in ruhiger Sackgassenlage im dörflich geprägten Schortens-Sillenstede.
Es beeindruckt schon beim Betreten mit seiner massiven Bauweise und seinem großzügigen Grundriss. Große Fensterflächen und der weitläufige Wintergarten sorgen für helle, freundliche Räume und ein angenehmes...
Ausstattung
- moderne Einbauküche (Bj. 2020)
- geräumiger, wohnraumerweiternder Wintergarten (Bj. 2006)
- Kaminofen und Kamin
- zwei Bäder, ein Gäste-WC
- Fußbodenheizung
- Modernisierung 2002/2003: Heizung, Elektrik, Fenster, Dachisolierung, Innenausbau
Preisinformation
1 Stellplatz
Weitere Informationen
Stichworte
Nutzfläche: 41,75 m², Anzahl der Schlafzimmer: 4, Anzahl der Badezimmer: 2, Anzahl der separaten WCs: 2, Anzahl Terrassen: 1
Sonstiges/Wohnen: Dachboden
Anbieter der Immobilie
Volksbank Jade-Weser Immobilien GmbH
Bürgermeister-Heidenreich-Str. 5, 26316 Varel
Online-ID: 2md8h5m
Referenznummer: 9725
Finde Angebote wie dieses
Hier geht es zu unserem Impressum, den Allgemeinen Geschäftsbedingungen, den Hinweisen zum Datenschutz und nutzungsbasierter Online-Werbung.