
Evernest GmbH
Jan Hitschler
+49 ···
Nr. anzeigenPreise & Kosten
Provision für Käufer
3.57 inkl. MwSt.
Bei Abschluss eines notariellen Kaufvertrages ist eine Käuferprovision vom Käufer in Höhe von 3.57 % inkl. MwSt. aus dem Kaufpreis fällig.
Lage
Die Immobilie befindet sich in ruhiger und zugleich zentraler Lage von Dreieich im Stadtteil Dreieichenhain, einem der begehrtesten Wohnorte im südlichen Rhein-Main-Gebiet. Die Immobilie liegt in einer verkehrsberuhigten Wohnstraße mit vorwiegend wohnwirtschaftlicher Bebauung.
Dank der hervorragenden Infrastruktur sind...
Das Haus
Kategorie
Einfamilienhaus
Baujahr
1900
Energie & Heizung
Warum sehe ich diese Anzeige? – Du siehst diese Anzeige basierend auf Ihrer Navigation auf unserer Website und den Suchkriterien, die du verwendet hast.
Energieausweistyp
Verbrauchsausweis
Gebäudetyp
Wohngebäude
Effizienzklasse
H
Endenergieverbrauch
291,97 kWh/(m²·a) - Warmwasser enthalten
Weitere Energiedaten
Energieträger
Gas
Details
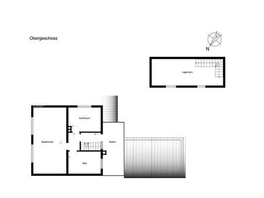
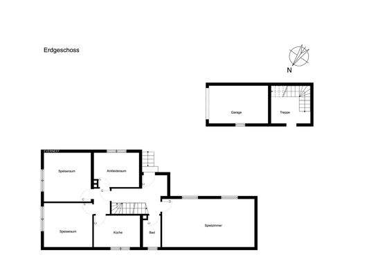
Objektbeschreibung
Dieses ca. 1900 erbaute Einfamilienhaus wurde 1960 um ein weiteres Geschoss aufgestockt und liegt auf einem ca. 289 m² großen Grundstück. Die gesamte Liegenschaft wird derzeit an eine Krabbelstube vermietet und bietet Platz für 24 Kinder im Alter von 1 bis 3 Jahren.
Im Erdgeschoss befinden sich eine Küche, ein WC für...
Ausstattung
- Klimaanlage
- Tageslichtbäder
- Hohe Nachfrage auf KITA-Plätze
- Funktionaler Grundriss
- 2.400 € Kaltmiete p.M.
- Garage
- Zentrale Lage
- Rendite 4,88%
- Faktor 20,49
Weitere Informationen
Stichworte
Garage vorhanden, Anzahl der Badezimmer: 1, Anzahl der separaten WCs: 1, Anzahl Balkone: 1, 2 Etagen
Anbieter der Immobilie
Online-ID: 2md9k57
Referenznummer: L-WN4QDNR
Finde Angebote wie dieses
Hier geht es zu unserem Impressum, den Allgemeinen Geschäftsbedingungen, den Hinweisen zum Datenschutz und nutzungsbasierter Online-Werbung.