
Finest Properties International - Berlin Pankow
Herr Leon Weiß
+49 ···
Nr. anzeigenPreise & Kosten
Provision für Käufer
3,57 % inkl. der gesetzl. MwSt. von 19 % des Kaufpreises
Lage
Zwischen Tegeler See und Tegeler Forst gelegen, verbindet die Wohnlage in Tegel Wasser, Grün und Stadtkomfort auf angenehm kurze Wege. Die Greenwichpromenade, Bootsstege und Uferwege sind schnell erreicht. Spaziergänge am Wasser, Ruder- und SUP-Runden oder ein sonniger Kaffee mit Seeblick gehören hier ganz selbstverständlich...
Die Wohnung
Wohnungslage
1. Geschoss
Bezug
01.03.2026
Wohnanlage
Energie & Heizung
Warum sehe ich diese Anzeige? – Du siehst diese Anzeige basierend auf Ihrer Navigation auf unserer Website und den Suchkriterien, die du verwendet hast.
Energieausweistyp
Bedarfsausweis
Gebäudetyp
Wohngebäude
Wesentliche Energieträger
Erdgas schwer
Gültigkeit
16.10.2023 bis 02.01.2035
Effizienzklasse
D
Endenergiebedarf
126,40 kWh/(m²·a)
Details
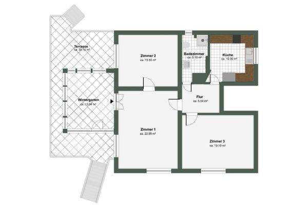
Objektbeschreibung
Bezugsfrei zum 01.03.2026: Ankommen, aufatmen, zuhause sein. Diese Hochparterre-Wohnung fängt den Charme des Berliner Altbaus ein und verwandelt ihn in ein warmes, lichtdurchflutetes Zuhause. Auf rund 104 m² entfalten sich drei ansprechend geschnittene Zimmer mit über 2,80 Meter Deckenhöhe. Das Herzstück ist der nach Süden...
Ausstattung
. Bezugfrei zum 01.03.2026
. Wohnfläche ca. 104,27 m², drei Zimmer, echte Hochparterre
. Südorientierter Wintergarten ca. 13 m² mit Fußbodenheizung
. 24 m² Terrasse mit anschließendem, eigenem Gartenanteil von knapp 200 m², Ausrichtung Süden
. Gepflegtes Echtholzparkett in den Wohnräumen
...
Weitere Informationen
Sonstiges
Unsere Angebote sind freibleibend und unverbindlich. Die Angaben basieren auf Aussagen des Verkäufers. Irrtum sowie Zwischenverkauf bleiben ausdrücklich vorbehalten. Der Maklervertrag mit uns und/oder unserem Beauftragten kommt durch schriftliche Vereinbarung oder durch die Inanspruchnahme unserer Maklertätigkeit...
Anbieter der Immobilie
Finest Properties International - Berlin Pankow
Wollankstraße 135, 13187 Berlin
Online-ID: 2md9n59
Referenznummer: KBP_626
Finde Angebote wie dieses
Hier geht es zu unserem Impressum, den Allgemeinen Geschäftsbedingungen, den Hinweisen zum Datenschutz und nutzungsbasierter Online-Werbung.