

BIDDEX Immobiliengesellschaft mbH
Herr Maximilian Verowski
+49 ···
Nr. anzeigenPreise & Kosten
Provision für Käufer
3 % des Kaufpreises zzgl. der gesetzlichen MwSt.
Bei Abschluss eines notariellen Kaufvertrages fällt eine Maklerprovision in Höhe von 3 % des Kaufpreises zzgl. der gesetzlichen MwSt. an.
Lage
Die Wohnungen befinden sich im begehrten Berliner Stadtteil Kreuzberg, an der Fichtestraße 20/21 sowie Graefestraße 41/42 im Postleitzahlengebiet 10967. Kreuzberg überzeugt mit seinem multikulturellen Flair, einer lebendigen Kulturszene und einer hervorragenden urbanen Infrastruktur.
Die Lage punktet mit einer...
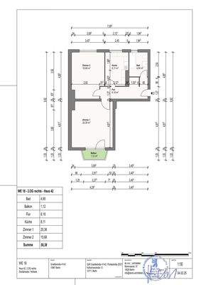
Die Wohnung
Wohnungslage
2. Geschoss
Bezug
sofort
Wohnanlage
Energie & Heizung
Warum sehe ich diese Anzeige? – Du siehst diese Anzeige basierend auf Ihrer Navigation auf unserer Website und den Suchkriterien, die du verwendet hast.
Energieausweistyp
Bedarfsausweis
Gebäudetyp
Wohngebäude
Wesentliche Energieträger
Gas
Gültigkeit
20.11.2020 bis 19.11.2030
Effizienzklasse
C
Endenergiebedarf
81,80 kWh/(m²·a)
Weitere Energiedaten
Energieträger
Gas
Heizungsart
Zentralheizung
Details
Objektbeschreibung
Im Herzen von Berlin-Kreuzberg, in der beliebten Lage rund um die Fichtestraße 20/21 und Graefestraße 41/42, befindet sich dieses charmante Wohnensemble aus dem Baujahr 1957. Die vier Gebäude sind über einen gepflegten, begrünten Innenhof miteinander verbunden und bieten eine ruhige Wohnatmosphäre mitten im urbanen...
Ausstattung
- 2 separate Zimmer
- Balkon
- Parkettboden
- Abstellkammer
- Gespachtelte Wände
- Modernes Gemeinschaftseigentum
- Kellerverschlag
- Optional PKW Stellplatz
Weitere Informationen
Sonstiges
Alle Angaben sind ohne Gewähr und basieren ausschließlich auf Informationen, die uns von unserem Auftraggeber übermittelt wurden. Wir übernehmen keine Haftung für die Vollständigkeit, Richtigkeit und Aktualität dieser Angaben. Irrtum und Zwischenverkauf/-vermietung vorbehalten.
Das Grundstück liegt im...
Dokumente
Anbieter der Immobilie
BIDDEX Immobiliengesellschaft mbH
Marburger Straße 17, 10789 Berlin

Online-ID: 2md9z5j
Referenznummer: B10163/WE18
Finde Angebote wie dieses
Hier geht es zu unserem Impressum, den Allgemeinen Geschäftsbedingungen, den Hinweisen zum Datenschutz und nutzungsbasierter Online-Werbung.