­AOG Objekt Verwaltungsgesellschaft mbH

Team Nachmieter

Kontaktiere den Anbieter schriftlich, es ist keine Telefonnummer hinterlegt.

Wunderschöne Drei-Zimmerwohnung in der Innenstadt

€ 800
Kaltmiete zzgl. NK
70,50 m²
Wohnfläche ca.
3
Zimmer

Der Anbieter dieses Objekts hat gegenüber der AVIV Germany GmbH als Betreiber dieses Online-Marktplatzes erklärt, nicht als Unternehmer im Sinne des § 1 KSchG zu handeln. Die im Verbraucherschutzrecht der Union verankerten Verbraucherrechte (insbesondere Informationspflichten und Rücktritts- bzw. Widerrufsrechte) finden auf den Vertrag zwischen dem Anbieter des Objekts und Ihnen (dem Interessenten) keine Anwendung.

Gewerblicher Anbieter

Der Anbieter dieses Objekts hat gegenüber der AVIV Germany GmbH als Betreiber dieses Online-Marktplatzes erklärt, als Unternehmer im Sinne des § 1 KSchG zu handeln.

AdresseBuckowerstr. 4b
15517 Fürstenwalde/Spree 
Auf Karte ansehen

Preise & Kosten

Kaltmiete € 800 Nebenkosten € 95 Heizkosten

in Warmmiete enthalten

€ 95
Warmmiete € 990 1 Stellplatz € 40

Kaution

2400

Lage

Das Wohngebäude überzeugt durch ihre attraktive Lage, die urbanen Komfort mit angenehmer Wohnruhe verbindet. Hier profitieren Sie von kurzen Wegen, einer sehr guten Infrastruktur und einer hohen Lebensqualität – ideal für Pendler, Familien und Ruhesuchende gleichermaßen.

In unmittelbarer Nähe befinden sich zahlreiche...

Mehr anzeigen

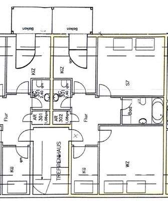
Die Wohnung

Wohnungslage

3. Geschoss

Bezug

sofort

  • Bad mit Wanne, Gäste-WC
  • Balkon
  • Böden: Fliesenboden, Laminat, Steinboden, Teppichboden
  • Fenster: Kunststofffenster
  • Ausstattung: neuwertig
  • Weitere Räume: Kelleranteil, Abstellraum
  • Anschlüsse: DSL-Anschluss, Kabelanschluss

Wohnanlage

  • Baujahr: 1997
  • 1 Stellplatz: Tiefgarage
  • Serviceleistungen: Reinigungsservice

Energie & Heizung

A+
A
B
C
D
E
F
G
H
0 25 50 75 100 125 150 175 200 225 250 +

Energieausweistyp

Verbrauchsausweis

Gebäudetyp

Wohngebäude

Baujahr laut Energieausweis

1997

Wesentliche Energieträger

Gas

Gültigkeit

02.02.2023 bis 02.02.2033

Effizienzklasse

C

Endenergieverbrauch

77,80 kWh/(m²·a) - Warmwasser enthalten

Weitere Energiedaten

Energieträger

Gas

Heizungsart

Fußbodenheizung, Zentralheizung

Details

Objektbeschreibung

Sehr helle und praktisch geschnittene Wohnung mit Fußbodenheizung in allen Zimmern. Separat begehbare Räume ohne Durchgangszimmer, Flur mit Granitboden, geflieste Küche sowie Laminat in den Zimmern. Balkon und eigenes Kellerabteil runden dieses attraktive Wohnangebot ab.

Weitere Informationen

Gebäudebeschreibung
Das gepflegte Mehrfamilienhaus wurde im Jahr 1997 errichtet und präsentiert sich in einem soliden sowie zeitgemäßen Zustand. Die Wohnanlage umfasst insgesamt 23 Wohneinheiten, die sich auf drei separate Aufgänge verteilen und so für eine angenehme und übersichtliche Struktur sorgen.

Das Gebäude...

Mehr anzeigen

Anbieter der Immobilie

Partner

­AOG Objekt Verwaltungsgesellschaft mbH

im Durchschnitt  4,00  Sterne
(bei 6 Bewertungen)

Fischerstr. 5/6, 15517 Fürstenwalde

user

Team Nachmieter

Dein Ansprechpartner

Kontaktiere den Anbieter schriftlich, es ist keine Telefonnummer hinterlegt.

Anbieter-Website Anbieter-Profil Anbieter-Impressum

Online-ID: 2mdav3g

Referenznummer: Wohn.Nr.302

Finde Angebote wie dieses

imageimageimage

Hier geht es zu unserem Impressum, den Allgemeinen Geschäftsbedingungen, den Hinweisen zum Datenschutz und nutzungsbasierter Online-Werbung.