gb-direkt Finanzberatung & Immobilienhandel GmbH

Frau Snezana Benes

++NEU++ Augarten-Nähe: 93 m² Altbau - sanierungsbedürftig & voller Möglichkeiten (derzeit Zwei Einheiten)

€ 329.000
Kaufpreis
93 m²
Wohnfläche ca.
3
Zimmer
Finanzierung berechnen mit durchblicker

Der Anbieter dieses Objekts hat gegenüber der AVIV Germany GmbH als Betreiber dieses Online-Marktplatzes erklärt, nicht als Unternehmer im Sinne des § 1 KSchG zu handeln. Die im Verbraucherschutzrecht der Union verankerten Verbraucherrechte (insbesondere Informationspflichten und Rücktritts- bzw. Widerrufsrechte) finden auf den Vertrag zwischen dem Anbieter des Objekts und Ihnen (dem Interessenten) keine Anwendung.

Gewerblicher Anbieter

Der Anbieter dieses Objekts hat gegenüber der AVIV Germany GmbH als Betreiber dieses Online-Marktplatzes erklärt, als Unternehmer im Sinne des § 1 KSchG zu handeln.

AdresseStraße nicht freigegeben
1200 Wien 
(Brigittenau)
Auf Karte ansehen

Preise & Kosten

Kaufpreis € 329.000 Betriebskosten € 244,27

Provision für Käufer

Bitte beachte, das Angebot kann bei Vertragsabschluss die Zahlung einer Provision beinhalten. Weitere Informationen erhältst Du vom Anbieter.

Lage

Die Wohnung

Wohnungslage

3. Geschoss

  • Bad mit Dusche
  • Böden: Fliesenboden, Laminat
  • Zustand: renovierungsbedürftig / sanierungsbedürftig

Wohnanlage

  • Zustand: Altbau (bis 1945)

Energie & Heizung

Heizwärmebedarf (HWB)

C

99,00 kWh/(m²·a)

Weitere Energiedaten

Energieträger

Gas

Heizungsart

Etagenheizung

Details

Objektbeschreibung

ALTBAUJUWEL MIT GROSSEM POTENZIAL - CA. 93 M² NUR WENIGE SCHRITTE VOM AUGARTEN ENTFERNT
ZWEI EINHEITEN | INDIVIDUELLE GESTALTUNG | GENERALSANIERUNGSBEDÜRFTIG

Sanierung kann nach Absprache durch den Verkäufer erfolgen.

-------------------------

In absolut gefragter Lage des 20. Bezirks, an der...

Mehr anzeigen

Weitere Informationen

Stichworte
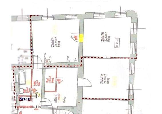
Anzahl der Badezimmer: 2, Anzahl der separaten WCs: 2, Bundesland: Wien

Anbieter der Immobilie

Partner

gb-direkt Finanzberatung & Immobilienhandel GmbH

im Durchschnitt  3,20  Sterne
(bei 2 Bewertungen)

Assmayergasse 60/1, 1120 WIEN

user

Frau Snezana Benes

Dein Ansprechpartner

Anbieter-Website Anbieter-Profil Anbieter-Impressum

Online-ID: 2mdbx5p

Referenznummer: OBGC20251213233706070d0ff8761ab

Finde Angebote wie dieses

imageimageimage

Günstige Immobilienfinanzierung einfach online berechnen

Persönliches Angebot berechnen

Hier geht es zu unserem Impressum, den Allgemeinen Geschäftsbedingungen, den Hinweisen zum Datenschutz und nutzungsbasierter Online-Werbung.