

Bungalow zum Kauf468000 €3.821 €/m²3,5 Zimmer • 122,5 m² • 1.235 m² Grundstück • frei ab sofort
468000 €
3.821 €/m²
3,5 Zimmer • 122,5 m² • 1.235 m² Grundstück • frei ab sofort
Ein Klassiker mit Zukunft. Bungalow in Embsen-Oerzen.
Merkmale
- Bezug: Nach Vereinbarung
- 1.235 m² Grundstück
- Einbauküche
- Keller
- 3 Stellplätze: Carport, Garage, Außen-Stellplatz
- Garten
- Terrasse
- Badezimmer: Badewanne, Bad mit Dusche, Bad mit Fenster
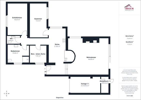
Grundrisse
Grundrisse
1 / 2
Realisiere Dein Projekt
Bausubstanz und Energie
Energieausweis
H
- Baujahr1974
- Zustand der ImmobilieGepflegt
- HeizungsartZentralheizung
- EnergieträgerGas
Preisdetails
Kaufpreis
468000 €
3.820,72 €/m²
Provision für Käufer
3,57% inkl. MwSt. vom Kaufpreis für Nachweis und/oder Die Courtage für den Nachweis und / oder die Vermittlung beträgt für den Käufer und Verkäufer jeweils 3,57% inkl. MwSt. vom Kaufpreis. Sie ist verdient und fällig mit der Beurkundung des Kaufvertrages.
Weitere Preisinformationen
1 Carportplatz
1 Stellplatz
1 Garagenstellplatz
1 Stellplatz
1 Garagenstellplatz
Geschätzte Gesamtkosten
517.468 €1
Kaufpreis
468.000 €
Kaufnebenkosten
49.468 €
2Notarkosten (1,5%)
7.020 €
Grunderwerbsteuer (5%)
23.400 €
Provision für Käufer (3,57%)
16.708 €
Grundbucheintrag (0,5%)
2.340 €
1Der angezeigte Wert ist eine automatisch berechnete Schätzung von immowelt.
2Bei den Angaben handelt es sich um ortsübliche Werte. Individuelle Kosten können abweichen.
Lage

Oerzen, Embsen (21409)
Der Anbieter hat die genaue Adresse nicht freigegeben
Weitere Informationen
Weitere Services
Lust auf eine Besichtigung?
Eine Frage zur Immobilie?
Über den Anbieter
Imken Immobilien GmbH & Co. KGMaklerbüro
Große Bleichen 21, 20354 Hamburg
Partnerschaft

Herr Jürgen ImkenDein Kontakt
Online-ID: 2mdck5y
Referenznummer: 764


Imken Immobilien GmbH & Co. KG
Wie zufrieden bist du mit dieser Seite (nicht mit der Immobilie selbst)?

