
s REAL Immobilienvermittlung GmbH
Herr Alexander Kepka
+43 ···
Nr. anzeigenPreise & Kosten
Provision für Käufer
provisionsfrei
Büro-/Praxisfläche
Geschoss
Erdgeschoss
Energie & Heizung
Warum sehe ich diese Anzeige? – Du siehst diese Anzeige basierend auf Ihrer Navigation auf unserer Website und den Suchkriterien, die du verwendet hast.
Heizwärmebedarf (HWB)
26,73 kWh/(m²·a)
Gesamtenergieeffizienz (fGEE)
0,67
Details
Objektbeschreibung
m Wildgarten, 12.Bezirk, sind die letzten Eigentumswohnungen bereit für ihre neuen Bewohner:innen.
Der Wildgarten ist ein vielseitiges Wohnquartier, das sowohl urbane und ländliche Qualitäten verbindet und für ein gemeinschaftliches Miteinander steht.
Das autofreie Quartier verfügt über eine sehr vielseitige...
Weitere Informationen
Stichworte
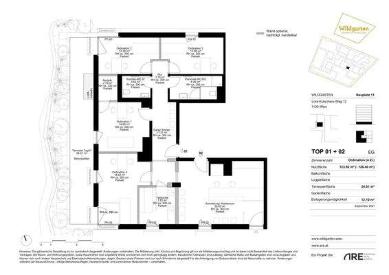
Nutzfläche: 123,62 m², Anzahl der Badezimmer: 1, Anzahl der separaten WCs: 2, Anzahl Terrassen: 1, Balkon-Terrassen-Fläche: 24,01 m², Kellerfläche: 12,10 m², Bundesland: Wien, Wohnungsnr.: 1+2
Dokumente
Anbieter der Immobilie
s REAL Immobilienvermittlung GmbH
Landstraßer Hauptstraße 60, 1030 WIEN
Online-ID: 2mde45z
Referenznummer: OBGC20260108102735327e6b5dfabcf
Finde Angebote wie dieses
Hier geht es zu unserem Impressum, den Allgemeinen Geschäftsbedingungen, den Hinweisen zum Datenschutz und nutzungsbasierter Online-Werbung.