Privater Anbieter

Frau Vinka Miletic

Baugrundstück mit genehmigtem Projekt-100m vom Meer-Wohnhaus 214m2, Nebengebäude und Pool,Nähe Zadar

€ 145.000
Kaufpreis
440 m²
Grundstücksfl. ca.
Privater Anbieter

Der Anbieter dieses Objekts hat gegenüber der AVIV Germany GmbH als Betreiber dieses Online-Marktplatzes erklärt, nicht als Unternehmer im Sinne des § 1 KSchG zu handeln. Die im Verbraucherschutzrecht der Union verankerten Verbraucherrechte (insbesondere Informationspflichten und Rücktritts- bzw. Widerrufsrechte) finden auf den Vertrag zwischen dem Anbieter des Objekts und Ihnen (dem Interessenten) keine Anwendung.

Der Anbieter dieses Objekts hat gegenüber der AVIV Germany GmbH als Betreiber dieses Online-Marktplatzes erklärt, als Unternehmer im Sinne des § 1 KSchG zu handeln.

AdresseMirka Miocica
23248 Razanac 
Auf Karte ansehen

Preise & Kosten

Kaufpreis € 145.000

Das Grundstück

  • Grundstücksnutzung: Wohnen
  • Erschließungsumfang: Strom, Telekommunikation, Wasser
  • Ausblick: Meerblick

Details

Objektbeschreibung

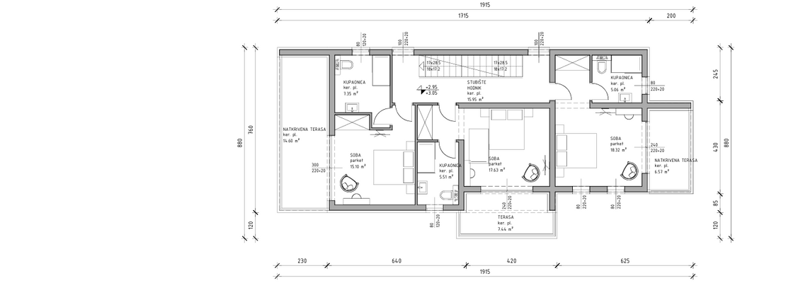
Die geplante Wohnimmobilie erstreckt sich über Erdgeschoss und Obergeschoss und bietet eine moderne, funktionale und sehr komfortable Raumaufteilung.
Erdgeschoss:
Garage mit direktem Zugang zum Haus
Überdachter Eingangsbereich
Badezimmer
Wasch- und Hauswirtschaftsraum
Eingangsbereich
Offener Wohnbereich...

Mehr anzeigen

Weitere Informationen

Baugrundstück mit Projekt
Zum Verkauf steht ein attraktives Baugrundstück in der Nähe von Zadar (Kroatien),nur 100 Meter vom Meer entfernt. Im Angebot enthalten ist ein vollständig ausgearbeitetes und einreichfertiges Projekt für den Bau einer modernen Wohnimmobilie.
Ein zusätzlicher Vorteil: Der Verkäufer steht dem...

Mehr anzeigen

Anbieter der Immobilie

user

Privater Anbieter

Frau Vinka Miletic

Online-ID: 2mdek5a

Finde Angebote wie dieses

imageimageimage

Hier geht es zu unserem Impressum, den Allgemeinen Geschäftsbedingungen, den Hinweisen zum Datenschutz und nutzungsbasierter Online-Werbung.