

Klaus Meyer Immobilien
Herr Klaus Meyer
040 ···
Nr. anzeigenPreise & Kosten
Provision für Mieter
provisionsfrei
Warum sehe ich diese Anzeige? – Du siehst diese Anzeige basierend auf Ihrer Navigation auf unserer Website und den Suchkriterien, die du verwendet hast.
Lage
Der "Astra Turm" liegt im südlichen Bereich des Hamburger Stadtteils St. Pauli, im Harbour Business District.
Exponierte Lage im Stadtteil St. Pauli
Zwischen Landungsbrücken und Reeperbahn gelegen
Hamburger Innenstadt ca. 3 km entfernt
Landungsbrücken befinden sich in ca. 500 m Entfernung
U-Bahn Anbindung...
Die Ladenfläche
Kategorie
Verkaufsfläche
Baujahr
2007
Bezug
sofort
Erdgeschoss
Energie & Heizung
Warum sehe ich diese Anzeige? – Du siehst diese Anzeige basierend auf Ihrer Navigation auf unserer Website und den Suchkriterien, die du verwendet hast.
Wärme
Strom
Energieausweistyp
Verbrauchsausweis
Gebäudetyp
Nicht-Wohngebäude
Baujahr laut Energieausweis
2007
Wesentliche Energieträger
FERN
Gültigkeit
bis 17.05.2030
Endenergieverbrauch (Wärme)
100,50 kWh/(m²·a)
Endenergieverbrauch (Strom)
123,30 kWh/(m²·a)
Weitere Energiedaten
Heizungsart
Zentralheizung
Details
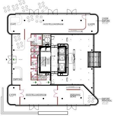
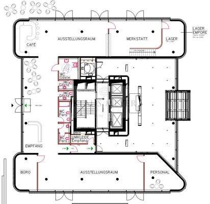
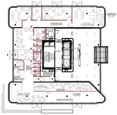
Objektbeschreibung
ASTRATURM - Erdgeschoßflächen
Wir könnten uns hier folgende Nutzungskonzepte vorstellen:
- Einzelhandel
- Yogastudio
- Bikershop inkl. Werkstatt
- Galerie
- Co-Working mit Delikatessen
Gern haben wir bereits erstellte erste Grundrissplanungen zu diesen Nutzungen beigefügt.
Höhe Rohdecke...
Ausstattung
- Anspruchsvolle Architektur, historischem Bezug
- Exklusive Dachterrasse zur Nutzung aller Mieter
- 3 Personenaufzüge
- Tiefgarage über 3 Ebenen
- ca.180 Kfz-Stellplätze
Weitere Informationen
Sonstiges
Die Provisionsfreiheit dieser Vermietung setzt einen Mietvertragsabschluss mit einer Mindest-Vertragslaufzeit von 5 Jahren voraus.
Für den Fall der kurzfristigeren Vertragslaufzeit wird dem Mieter eine Courtage in Höhe von 3,57 Brutto-Monatsmieten inkl. 19% Umsatzsteuer berechnet.
Alle Preise...
Anbieter der Immobilie
Klaus Meyer Immobilien
Marmstorfer Weg 52, 21077 Hamburg

Online-ID: 2mdew5a
Referenznummer: 21089
Finde Angebote wie dieses
Hier geht es zu unserem Impressum, den Allgemeinen Geschäftsbedingungen, den Hinweisen zum Datenschutz und nutzungsbasierter Online-Werbung.