
RE/MAX Immobilien Walsrode
Herr Tobias Meyer
004 ···
Nr. anzeigenPreise & Kosten
Kaution
2.000,00
Provision für Mieter
2 Kaltmieten zzgl. MwSt. inkl. MwSt.
Warum sehe ich diese Anzeige? – Du siehst diese Anzeige basierend auf Ihrer Navigation auf unserer Website und den Suchkriterien, die du verwendet hast.
Lage
Die Immobilie befindet sich an einer Hauptstraße im Herzen von Bad Fallingbostel. Der charmante Ort ist besonders beliebt für seine zentrale Lage in der Lüneburger Heide und die gute Anbindung an städtische Infrastruktur und naturnahe Umgebung gleichermaßen.
Ihr neuer Gewerbestandort liegt inmitten der Kreisstadt Bad...
Die Ladenfläche
Kategorie
Laden
Baujahr
1965
Energie & Heizung
Warum sehe ich diese Anzeige? – Du siehst diese Anzeige basierend auf Ihrer Navigation auf unserer Website und den Suchkriterien, die du verwendet hast.
Wärme
Energieausweistyp
Verbrauchsausweis
Gebäudetyp
Nicht-Wohngebäude
Baujahr laut Energieausweis
1965
Gültigkeit
bis 31.07.2028
Endenergieverbrauch (Wärme)
252,10 kWh/(m²·a)
Details
Objektbeschreibung
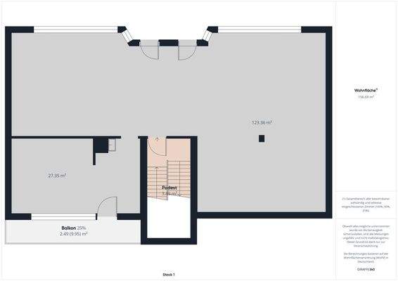
Dieses großzügige Mietobjekt, mit einer Gewerbefläche von 155,5 m², besticht durch seine funktionale Raumaufteilung und bietet vielseitige Nutzungsmöglichkeiten. Die Fensterfassade sorgt für helle und lichtdurchflutete Räume, die ein angenehmes Arbeitsambiente gewährleisten.
Der Ladenraum ist weitläufig und bietet...
Ausstattung
- eigener Balkon
- Toilette im Keller gehört zur Gewerbeeinheit
- Wasser und Abwasser vorhanden
- große Fensterfront für Ihre Werbung
- 8 Parkplätze direkt vor der Tür
Preisinformation
8 Stellplätze
Nettokaltmiete: 1.000,00 EUR
Weitere Informationen
Sonstiges
Es liegt ein Energieverbrauchsausweis vor.
Dieser ist gültig bis 31.7.2028.
Endenergieverbrauch beträgt 252.10 kwh/(m²*a).
Das Baujahr des Objekts lt. Energieausweis ist 1965.
Die Energieeffizienzklasse ist H.
Die vorstehenden freibleibenden Angaben basieren auf Auskünften des Eigentümers. Die...
Anbieter der Immobilie
RE/MAX Immobilien Walsrode
Kleiner Graben 20b, 29644 Walsrode
Online-ID: 2mdgz56
Referenznummer: 1093-1874-TM
Finde Angebote wie dieses
Hier geht es zu unserem Impressum, den Allgemeinen Geschäftsbedingungen, den Hinweisen zum Datenschutz und nutzungsbasierter Online-Werbung.