
TW Wohnbau Gruppe
Herr Kim Klug
036 ···
Nr. anzeigenPreise & Kosten
Provision für Käufer
provisionsfrei
Abschreibung/Anlage
als Kapitalanlage geeignet
Lage
Die Immobilie befindet sich im nördlichen Teil Jenas, in der Zeitzer-Straße 2, ehem. IHK-Gelände.
Als traditionsreicher Wissenschaftsstandort mit international renommierten Forschungseinrichtungen, pulsierender Universitätsstadt und wachsendem Zentrum für Hightech-Unternehmen verbindet Jena auf einzigartige Weise Historie...
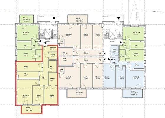
Die Wohnung
Wohnungslage
Erdgeschoss
Bezug
2027
Wohnanlage
Energie & Heizung
Warum sehe ich diese Anzeige? – Du siehst diese Anzeige basierend auf Ihrer Navigation auf unserer Website und den Suchkriterien, die du verwendet hast.
Energieausweistyp
Verbrauchsausweis
Gebäudetyp
Wohngebäude
Baujahr laut Energieausweis
2026
Wesentliche Energieträger
Fernwärme
Effizienzklasse
B
Endenergieverbrauch
50,00 kWh/(m²·a)
Weitere Energiedaten
Energieträger
Fernwärme
Heizungsart
Fußbodenheizung
Details
Objektbeschreibung
Das Mehrfamilienhaus mit Tiefgarage verfügt über 28 Wohneinheiten (2 - 4 Raumwohnungen) mit innovativen Grundrissen in verschiedenen Größen von ca. 44 m² bis 114 m².
Die Eigentumswohnungen verteilen sich auf das Erdgeschoss, 1. - 3.Obergeschoss und das Dachgeschoss.
Über das Treppenhaus oder den Aufzug sind die...
Ausstattung
• moderne Heizungsanlage
• barrierefreie Zugänge und Wohnungen
• Kunststoff-Fenster entsprechend dem Gebäudeenergiegesetz
• Design Vinyl
• Fliesenböden in 60x60 cm
• elektrische Rollläden in den Wohnbereichen
• Innentüren als Röhrenspanelement und Kunststoffoberfläche in Weißlack
•...
Weitere Informationen
Allgemein
Durch eine Anfrage stimmen Sie unseren Datenschutzvereinbarungen (https://www.tw-wohnbau.de/datenschutz/) zu und gestatten uns Sie zu kontaktieren.
Gerne können Sie uns auch außerhalb der Geschäftszeiten via E-Mail kontaktieren.
E-Mail: verkauf@tw-wohnbau.de
https://www.tw-wohnbau.de/
Bild...
Anbieter der Immobilie
TW Wohnbau Gruppe
August-Bebel-Straße 5, 07743 Jena
Online-ID: 2mdhk5l
Finde Angebote wie dieses
Hier geht es zu unserem Impressum, den Allgemeinen Geschäftsbedingungen, den Hinweisen zum Datenschutz und nutzungsbasierter Online-Werbung.