
Gattinger Immobilien
Herr Michael Gattinger
081 ···
Nr. anzeigenPreise & Kosten
Provision für Käufer
3,57 % inkl. ges. MwSt.
Lage
Dachau zählt mit seiner ausgezeichneten Infrastruktur und den vielfältigen Nahversorgungs-, Freizeit- und Verkehrsanbindungen seit Jahren zu den gefragtesten Wohnstandorten im Münchner Umland.
Die Robert-von-Haug-Straße bietet dabei eine optimale Kombination aus ruhigem Wohnambiente und besten Anbindungen: Die Lage...
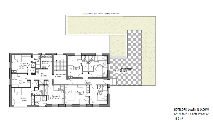
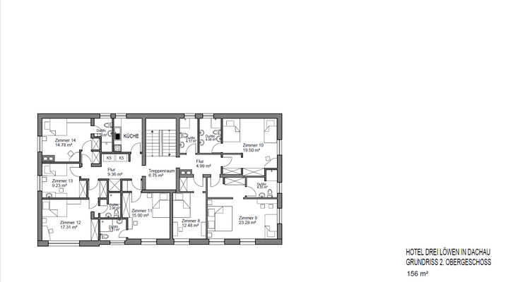
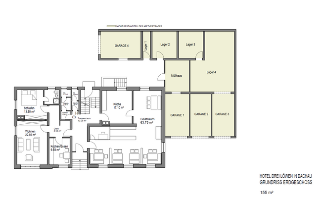
Das Renditeobjekt
Baujahr
1966
Energie & Heizung
Warum sehe ich diese Anzeige? – Du siehst diese Anzeige basierend auf Ihrer Navigation auf unserer Website und den Suchkriterien, die du verwendet hast.
Energieausweistyp
Bedarfsausweis
Gebäudetyp
Wohngebäude
Wesentliche Energieträger
Gas
Gültigkeit
06.11.2025 bis 06.11.2035
Effizienzklasse
G
Endenergiebedarf
347,30 kWh/(m²·a)
Weitere Energiedaten
Energieträger
Gas
Heizungsart
Zentralheizung
Details
Objektbeschreibung
Ehemaliges Hotel / Gasthof mit Fremdenzimmern - Renditeobjekt mit Zukunftspotenzial
Dieses vielseitige Anwesen bietet eine seltene Kombination aus solider Rendite und spannender Entwicklungsperspektive. Der ehemalige Gasthof wurde in den vergangenen Jahren zu einem Renditeobjekt mit möblierten Apartments umgestaltet...
Ausstattung
Umfangreiche Sanierungs- und Umbaumaßnahmen Mitte der 1990er
Modernisierung der Zimmer ca. 2015
Sehr schöne und ruhige Wohnlage
Hohe Rendite durch Vermietung auf Zeit oder möbliertes Wohnen
S-Bahnhof fußläufig gut erreichbar
Solarthermie auf dem Dach
Glasfaseranschluss...
Weitere Informationen
Sonstiges
Sämtliche Objektinformationen haben wir von Dritten erhalten. Für die Richtigkeit und Vollständigkeit der Angaben sowie zu den Angaben im Exposé übernehmen wir keine Haftung. Beim Erwerb der Immobilie fallen neben der Maklercourtage zusätzlich zur Kaufsumme die Grunderwerbsteuer 3,5 % sowie Notar- und...
Anbieter der Immobilie
Gattinger Immobilien
Augsburger Str. 11, 85221 Dachau
Online-ID: 2mdjm59
Referenznummer: 75
Finde Angebote wie dieses
Hier geht es zu unserem Impressum, den Allgemeinen Geschäftsbedingungen, den Hinweisen zum Datenschutz und nutzungsbasierter Online-Werbung.