

Sonstiges zur Miete995 €
995 €
Großzügige Büro-oder Praxisflächen in der Eilenburgerstraße zu vermieten
Merkmale
- frei ab sofort
- 1 Geschoss
- Bodenbelag: Fliesen
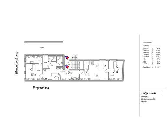
Grundrisse
Grundrisse
1 / 1
Realisiere Dein Projekt
Bausubstanz und Energie
Der Anbieter hat keine Informationen zum Energieverbrauch bereit gestellt.
- Zustand der ImmobilieGepflegt
- EnergieträgerGas
Mietkosten
Kaltmiete
995 €
Nebenkosten
280 €
Provision fĂĽr Mieter
Bitte beachte, das Angebot kann bei Vertragsabschluss die Zahlung einer Provision beinhalten. Weitere Informationen erhältst Du vom Anbieter.
Kaution
1900 €
Lage

Eilenburger Straße 76, Delitzsch (04509)
Weitere Informationen
Weitere Services
Lust auf eine Besichtigung?
Eine Frage zur Immobilie?
Ăśber den Anbieter
Otterbach Wohnbau GmbHMaklerbĂĽro
In der Kerz 10, 74545 Michelfeld
Partnerschaft
Frau RögerDein Kontakt
Keine Telefonnummer hinterlegt
Keine Telefonnummer hinterlegt
Online-ID: 2mdky5q
Referenznummer: 171853

Otterbach Wohnbau GmbH
Bewertung: 3,8 von 5 Sternen
Wie zufrieden bist du mit dieser Seite (nicht mit der Immobilie selbst)?

