
McMakler GmbH
Ihr McMakler Team
080 ···
Nr. anzeigenPreise & Kosten
Provision für Käufer
Die Provision i.H.v. 3,57 % inkl. MwSt. ist mit Kaufvertragsbeurkundung fällig, sofern der Verkaufspreis über 83.000,00 € liegt.
Liegt der Verkaufspreis dagegen bei/unter 83. Weitere Informationen siehe Provisionshinweis.
Lage
Lage: Erhöhte Privatsphäre dank Feldrandlage - ideal für Ruhesuchende
Bildung und Betreuung: Vor Ort für Bildung und Betreuung ein Kindergarten vorhanden
Nahversorgung: Bequem zu Fuß in max. 5 Minuten kaufen: Supermarkt, Apotheke und Bankfiliale
Anbindung: Gut erreichbar - nächste Autobahn
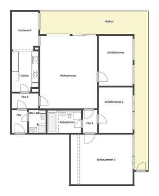
Die Wohnung
Wohnungslage
3. Geschoss
Bezug
nach Absprache
Wohnanlage
Energie & Heizung
Warum sehe ich diese Anzeige? – Du siehst diese Anzeige basierend auf Ihrer Navigation auf unserer Website und den Suchkriterien, die du verwendet hast.
Energieausweistyp
Verbrauchsausweis
Gebäudetyp
Wohngebäude
Baujahr laut Energieausweis
1976
Wesentliche Energieträger
Öl
Effizienzklasse
D
Endenergieverbrauch
127,60 kWh/(m²·a)
Weitere Energiedaten
Energieträger
Öl
Heizungsart
Zentralheizung
Details
Objektbeschreibung
Objektnr: 1066446
+ Attraktive Kapitalanlage mit stabilen Mieteinnahmen und Sanierungskonzept
+ Attraktiver Grundriss und großflächiger Balkon
+ Jahresnettokaltmiete: ca.16.000 €, monatliche Kosten 1.103€ (Hausgeld 653,29€)
+ Sanierte Bäder, neue Fenster und hochwertige Schiebetüren
+ Ein Keller und...
Weitere Informationen
Provisionshinweis
Die Provision i.H.v. 3,57 % inkl. MwSt. ist mit Kaufvertragsbeurkundung fällig, sofern der Verkaufspreis über 83.000,00 € liegt.
Liegt der Verkaufspreis dagegen bei/unter 83.000,00 €, ist die fest vereinbarte Mindestprovision i.H.v. mind. 5.950,00 € inkl. MwSt. mit Kaufvertragsbeurkundung fällig...
Anbieter der Immobilie
McMakler GmbH
Am Postbahnhof 17, 10243 Berlin
Online-ID: 2mdlc5y
Referenznummer: d48d0d3982
Finde Angebote wie dieses
Hier geht es zu unserem Impressum, den Allgemeinen Geschäftsbedingungen, den Hinweisen zum Datenschutz und nutzungsbasierter Online-Werbung.