

Herzlich Immobilien Jens Rhau e.K.
Herr Jens Rhau
051 ···
Nr. anzeigenPreise & Kosten
zzgl. Nebenkosten
Kaution
keine
Provision für Mieter
Bitte beachte, das Angebot kann bei Vertragsabschluss die Zahlung einer Provision beinhalten. Weitere Informationen erhältst Du vom Anbieter.
Warum sehe ich diese Anzeige? – Du siehst diese Anzeige basierend auf Ihrer Navigation auf unserer Website und den Suchkriterien, die du verwendet hast.
Lage
Die Lage der Immobilie, befindet sich in Neuenkirchen, am Rande der Lüneburger Heide, mit allen Annehmlichkeiten, wie diverse Einkaufsmöglichkeiten, Restaurants, Deutsch und Mediterran, Schulen, Kitas und auch für die ältere Generation, ist bestens gesorgt. Neuenkirchen liegt sehr zentral, im Dreieck Hamburg, Hannover und...
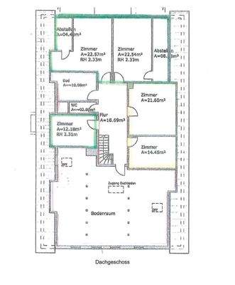
Büro-/Praxisfläche
Baujahr
1863
Bezug
sofort
Geschoss
2. Geschoss
Energie & Heizung
Warum sehe ich diese Anzeige? – Du siehst diese Anzeige basierend auf Ihrer Navigation auf unserer Website und den Suchkriterien, die du verwendet hast.
Energieausweistyp
Bedarfsausweis
Gebäudetyp
Wohngebäude
Baujahr laut Energieausweis
1999
Wesentliche Energieträger
Heizöl
Gültigkeit
12.05.2025 bis 12.05.2035
Effizienzklasse
H
Endenergiebedarf
273,90 kWh/(m²·a)
Details
Objektbeschreibung
*Tauche ein in die historischen Räumlichkeiten, lass deinen Gedanken freien Lauf und entwickle deine Vision*
Repräsentative Räumlichkeiten mit Geschichte – Denkmalgeschütztes Pfarrhaus zur Verpachtung.
Hier wartet eine ganz besondere Immobilie für Rechtsanwaltskanzleien, Notariate, steuerberatende Berufe, Architekten...
Weitere Informationen
Das Besondere, nur für Sie:
***Die Eigentümerin ist offen für *individuelle Konzepte zur Renovierung und Sanierung. Modelle wie pachtfreie Anlaufjahre, Kostenbeteiligungen oder maßgeschneiderte Vereinbarungen* sind ausdrücklich denkbar. Ziel ist eine langfristige, partnerschaftliche Lösung, die Ihren Bedarf optimal...
Dokumente
Anbieter der Immobilie
Herzlich Immobilien Jens Rhau e.K.
Wilhelm-Raabe-Str. 5, 29643 Neuenkirchen

Online-ID: 2mdlr5u
Finde Angebote wie dieses
Hier geht es zu unserem Impressum, den Allgemeinen Geschäftsbedingungen, den Hinweisen zum Datenschutz und nutzungsbasierter Online-Werbung.