
Volksbank Nordschwarzwald Immobilienabteilung
Herr Sebastian Bensing
074 ···
Nr. anzeigenPreise & Kosten
Provision für Käufer
3,57 % inkl. MwSt.
Lage
Horb am Neckar, eine Stadt mit 25.651 Einwohnern im Landkreis Freudenstadt in Baden-Württemberg, bietet eine ideale Mischung aus ländlicher Idylle und städtischer Infrastruktur. Als bevölkerungsreichste Gemeinde des Landkreises und Mittelzentrum in der Region Nordschwarzwald, liegt Horb am Neckar etwa 50 Kilometer südwestlich...
Die Wohnung
Derzeitige Nutzung
vermietet
Wohnanlage
Energie & Heizung
Warum sehe ich diese Anzeige? – Du siehst diese Anzeige basierend auf Ihrer Navigation auf unserer Website und den Suchkriterien, die du verwendet hast.
Energieausweistyp
Bedarfsausweis
Gebäudetyp
Wohngebäude
Baujahr laut Energieausweis
1920
Wesentliche Energieträger
Elektroenergie
Gültigkeit
21.02.2023 bis 21.02.2033
Effizienzklasse
A+
Endenergiebedarf
16,50 kWh/(m²·a)
Weitere Energiedaten
Energieträger
Elektro
Haustyp
KfW 55
Heizungsart
Fußbodenheizung, Luft-/Wasser-Wärmepumpe
Details
Objektbeschreibung
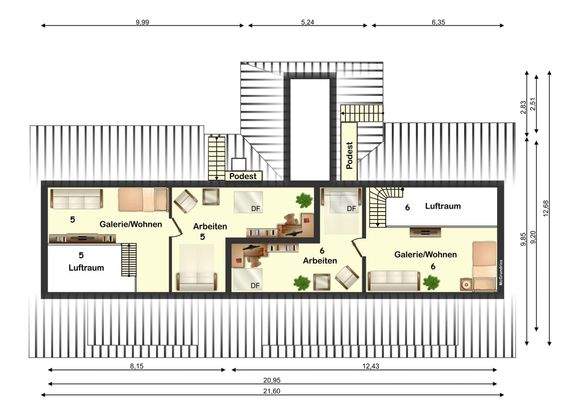
3,5-Zimmer-Galerie-Wohnung Nr. 5 im Dachgeschoss und II. Dachgeschoss mit 96,72 m² Wohnfläche.
Dieses neuwertige Mehrfamilienhaus mit insgesamt sechs Wohneinheiten besteht aus dem kernsanierten Erdgeschossbereich (aus dem Ursprungsjahr 1920) des ehemaligen "Adler" und wurde im Jahr 2021 um das Obergeschoss, das...
Ausstattung
Individuelle Ausstattungsmerkmale:
- Parkett
Im Überblick:
- Wohnhaus nach KfW-55-Standard
- Große Balkone / Terrassen mit Südausrichtung
- Wohnhaus in massiver Holzbauweise unter Verwendung von ökologischen Baumaterialien
- Bodenbeläge: Parkettholzböden in allen Wohnräumen, hochwertige, zeitlose...
Weitere Informationen
Stichworte
Stellplatz vorhanden, Breitband Zugang mit 50 Mbit/Sec, Bundesland: Baden-Württemberg
Sonstiges/Wohnen: Galerie
Sonstiges: EDV-Verkabelung
Anbieter der Immobilie

Volksbank Nordschwarzwald Immobilienabteilung
Loßburger Str. 23, 72250 Freudenstadt
Online-ID: 2mdnf5z
Referenznummer: 0486-ETW Nr. 6
Finde Angebote wie dieses
Hier geht es zu unserem Impressum, den Allgemeinen Geschäftsbedingungen, den Hinweisen zum Datenschutz und nutzungsbasierter Online-Werbung.