
Müller Merkle Immobilien GmbH
Frau Chantal Rütz
Kontaktiere den Anbieter schriftlich, es ist keine Telefonnummer hinterlegt.
Preise & Kosten
Kaution
3180
Warum sehe ich diese Anzeige? – Du siehst diese Anzeige basierend auf Ihrer Navigation auf unserer Website und den Suchkriterien, die du verwendet hast.
Lage
Spandau, im Nordwesten von Berlin gelegen, bietet gleichermaßen urbanes Flair und dörfliche Beschaulichkeit. Das Herz des vielseitigen Bezirks ist die von der Havel umflossene Altstadt mit Fußgängerzone, Marktplatz und Havelpromenade. Hier locken zahlreiche Geschäfte, eine vielfältige Gastronomie und regelmäßige Feste und...
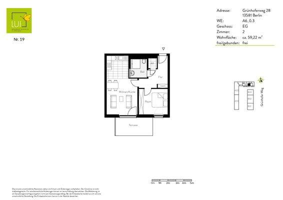
Die Wohnung
Wohnungslage
Erdgeschoss
Bezug
01.03.2026
Wohnanlage
Energie & Heizung
Warum sehe ich diese Anzeige? – Du siehst diese Anzeige basierend auf Ihrer Navigation auf unserer Website und den Suchkriterien, die du verwendet hast.
Energieausweistyp
Bedarfsausweis
Gebäudetyp
Wohngebäude
Baujahr laut Energieausweis
2020
Wesentliche Energieträger
Fernwärme
Gültigkeit
16.02.2020 bis 15.02.2030
Effizienzklasse
B
Endenergiebedarf
52,00 kWh/(m²·a)
Weitere Energiedaten
Energieträger
Fernwärme
Heizungsart
Fußbodenheizung
Details
Objektbeschreibung
In schlicht zurückgenommener, ansprechend moderner Architektur stehen im LUI insgesamt 167 Mietwohnungen - davon 32 gefördert - zur Anmietung bereit. Das Ensemble besteht aus einem L- sowie einem I-förmigen Gebäudeteil mit jeweils vier Vollgeschossen sowie einem Staffelgeschoss. Zusammen ergeben sie eine U-förmige Wohnanlage...
Ausstattung
- Einbauküche mit Markengeräten
- Fußbodenheizung in der gesamten Wohnung
- Balkon, Terrasse oder Dachterrasse
- bodentiefe Fenster
- elektrischer Sonnenschutz im Erdgeschoss, Plissées in den Obergeschossen
- Eichenechtholzparkett in den Wohnbereichen und Fluren
- Glattweiße Wände
- Dusch- und...
Weitere Informationen
Sonstiges
ANFRAGEN BITTE ÜBER DAS KONTAKTFORMULAR
BITTE BEACHTEN!
Wir respektieren den Wunsch der Mieter auf Privatsphäre. Bei den Bildern handelt es sich daher um
Bilder einer Musterwohnung im gleichen Objekt. Der Zuschnitt der angebotenen Wohnung
entspricht nicht den Bildern. Die Ausstattung (Böden...
Anbieter der Immobilie
Müller Merkle Immobilien GmbH
Galileistraße 1, 69115 Heidelberg
Frau Chantal Rütz
Dein Ansprechpartner
Kontaktiere den Anbieter schriftlich, es ist keine Telefonnummer hinterlegt.
Online-ID: 2mdns5j
Referenznummer: B-LUI-19-1#EpnLD
Finde Angebote wie dieses
Hier geht es zu unserem Impressum, den Allgemeinen Geschäftsbedingungen, den Hinweisen zum Datenschutz und nutzungsbasierter Online-Werbung.