
ACCENTA Immobilien
Herr Michael Riedler
+43 ···
Nr. anzeigenPreise & Kosten
Provision für Käufer
3% des Kaufpreises zzgl. 20% USt.
Lage
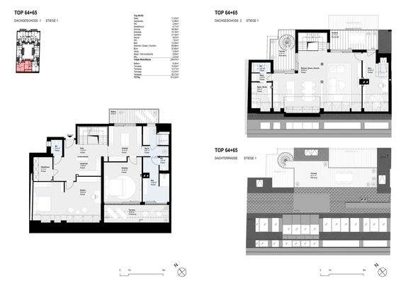
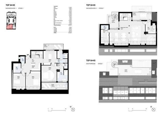
Paulusgasse 5, 1030 Wien
Die Wohnung
Wohnungslage
5. Geschoss
Bezug
01.12.2026
Wohnanlage
Energie & Heizung
Warum sehe ich diese Anzeige? – Du siehst diese Anzeige basierend auf Ihrer Navigation auf unserer Website und den Suchkriterien, die du verwendet hast.
Heizwärmebedarf (HWB)
43,80 kWh/(m²·a)
Gesamtenergieeffizienz (fGEE)
0,65
Weitere Energiedaten
Heizungsart
Fußbodenheizung, Luft-/Wasser-Wärmepumpe, Zentralheizung
Details
Objektbeschreibung
Alle Details zum Projekt finden Sie auch unter: www.paulus5.at [https://www.paulus5.at]
STILVOLLE ALTBAU-ELEGANZ TRIFFT MODERNEN WOHNKOMFORT
Im Zuge einer umfassenden Revitalisierung des historischen Bestandsgebäudes wird das Dachgeschoss zu insgesamt sieben exklusiven Dachgeschosswohnungen auf höchstem Niveau...
Weitere Informationen
Stichworte
Nord-Ost-Süd-West-Balkon/Terrasse, Fahrradraum, Rolladen, Nutzfläche: 314,32 m², Gesamtfläche: 314,32 m², Freifläche: 75,85 m², Anzahl der Badezimmer: 2, Anzahl der separaten WCs: 3, Anzahl Balkone: 1, Anzahl Terrassen: 4, Balkon-Terrassen-Fläche: 75,85 m², Kellerfläche: 10,00 m², Bundesland: Wien, 6 Etagen...
Anbieter der Immobilie
ACCENTA Immobilien
Georg-Sigl-Gasse 1/3, 1090 Wien
Online-ID: 2mdpq5q
Referenznummer: OBGC202511261059074152480e2738b
Finde Angebote wie dieses
Günstige Immobilienfinanzierung einfach online berechnen
Persönliches Angebot berechnenWarum sehe ich diese Werbung? – Du siehst diese Werbung basierend auf Deiner Navigation auf unserer Website und der von Dir verwendeten Suchkriterien.
Diese Werbung wird bezahlt von durchblicker
Werbung melden
Hier geht es zu unserem Impressum, den Allgemeinen Geschäftsbedingungen, den Hinweisen zum Datenschutz und nutzungsbasierter Online-Werbung.