Wohnungsgenossenschaft Schiffahrt - Hafen Rostock eG
Frau Christine Hoffmann
038 ···
Nr. anzeigenPreise & Kosten
Warum sehe ich diese Anzeige? – Du siehst diese Anzeige basierend auf Ihrer Navigation auf unserer Website und den Suchkriterien, die du verwendet hast.
Die Wohnung
Bezug
01.01.2026
Wohnanlage
Energie & Heizung
Warum sehe ich diese Anzeige? – Du siehst diese Anzeige basierend auf Ihrer Navigation auf unserer Website und den Suchkriterien, die du verwendet hast.
Energieausweistyp
Bedarfsausweis
Gebäudetyp
Wohngebäude
Baujahr laut Energieausweis
2023
Gültigkeit
14.01.2022 bis 13.01.2032
Effizienzklasse
B
Endenergiebedarf
71,00 kWh/(m²·a)
Weitere Energiedaten
Energieträger
Fernwärme
Heizungsart
Fußbodenheizung
Details
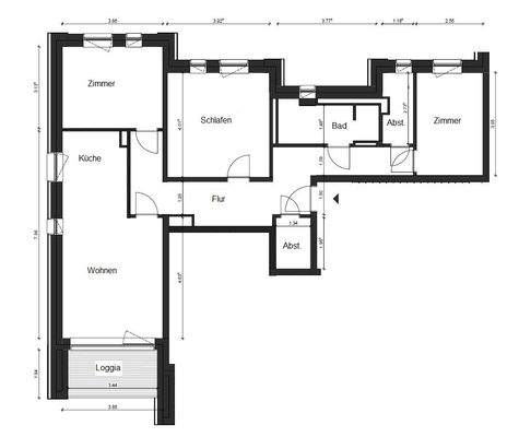
Objektbeschreibung
In unserem neuen Wohnquartier „Brecht-Park“ im nördlichen Zentrum von Evershagen gelegen, bieten wir ab Februar 2026 ein modernes Wohnen an. Die 3-Zimmer-Wohnung mit Vollbad und Fenster, Südterrasse sowie einer Fußbodenheizung bieten Ihnen ein gemütliches Zuhause mit modernem Komfort. Hier wohnen Sie zentral im Stadtteil...
Weitere Informationen
Sonstiges
Info: Anzahl Etagen: 5
Dokumente
Anbieter der Immobilie
Online-ID: 2mdrl5h
Finde Angebote wie dieses
Hier geht es zu unserem Impressum, den Allgemeinen Geschäftsbedingungen, den Hinweisen zum Datenschutz und nutzungsbasierter Online-Werbung.