
Richard Partners GmbH
Herr Luca Öxle
004 ···
Nr. anzeigenPreise & Kosten
Provision für Käufer
3,57%
Lage
Diese Immobilie ist ein ideales Zuhause für alle, die das ruhige und gepflegte Wohnen im Grünen mit der hervorragenden Erreichbarkeit der Münchner Metropolregion verbinden möchten. Sie befindet sich in Ottobrunn, einer beliebten Gemeinde im südöstlichen Landkreis München, die durch ihre angenehme Wohnlage, hohe Lebensqualität...
Das Haus
Kategorie
Reihenendhaus
Baujahr
1975
Bezug
sofort
Energie & Heizung
Warum sehe ich diese Anzeige? – Du siehst diese Anzeige basierend auf Ihrer Navigation auf unserer Website und den Suchkriterien, die du verwendet hast.
Energieausweistyp
Bedarfsausweis
Gebäudetyp
Wohngebäude
Baujahr laut Energieausweis
1973
Wesentliche Energieträger
ELEKTRO
Gültigkeit
bis 03.10.2032
Effizienzklasse
A+
Endenergiebedarf
30,00 kWh/(m²·a)
Weitere Energiedaten
Energieträger
Gas
Heizungsart
Luft-/Wasser-Wärmepumpe
Details
Objektbeschreibung
Dieses außergewöhnliche Einfamilienhaus im begehrten Nußbaumweg in Ottobrunn vereint höchste Bauqualität, moderne Energietechnik und ein exklusives Wohnambiente.
Mit rund 241 m² Wohnfläche auf sechs Zimmern, zwei luxuriösen Badezimmern und einem Gäste-WC bietet die Immobilie anspruchsvollen Wohnkomfort - ideal für...
Ausstattung
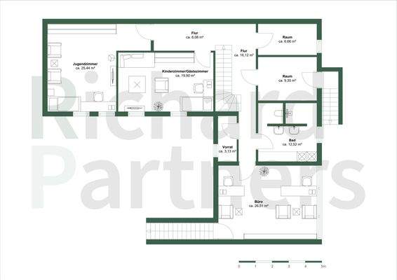
Praktischer Grundriss:
Sechs individuelle Wohnräume, großes Wohn-/Esszimmer, Tageslichtbad mit Badewanne und Regendusche, Gäste-WC & zusätzliches Bad im Untergeschoss
Küche:
Großzügiger Küchenbereich, mit direktem Zugang zum Wohn-/Essbereich
Erdgeschoss:
Großes Schlafzimmer mit abgetrenntem...
Preisinformation
2 Stellplätze
1 Tiefgaragenstellplatz
Weitere Informationen
Sonstiges
Grunderwerbsteuer, Notar- und Grundbuchkosten sowie eine Käuferprovision in Höhe von 3,57% inkl. gesetzlicher MwSt. sind vom Käufer zu tragen. Irrtum und Zwischenverkauf bleibt ausdrücklich vorbehalten. Alle Angaben beruhen auf Auskünften des Eigentümers bzw. Verkäufers. Wir können daher keine Gewähr für die...
Anbieter der Immobilie
Richard Partners GmbH
Theodor-Völker-Straße 13, 35423 Lich
Online-ID: 2mdrm5y
Referenznummer: 179
Finde Angebote wie dieses
Hier geht es zu unserem Impressum, den Allgemeinen Geschäftsbedingungen, den Hinweisen zum Datenschutz und nutzungsbasierter Online-Werbung.