
ohne-makler.net - Immobilien selbst vermarkten
Privat vom Eigentümer
Kontaktiere den Anbieter schriftlich, es ist keine Telefonnummer hinterlegt.
Preise & Kosten
nicht in Warmmiete enthalten
Kaution
2.265,00
Warum sehe ich diese Anzeige? – Du siehst diese Anzeige basierend auf Ihrer Navigation auf unserer Website und den Suchkriterien, die du verwendet hast.
Lage
Das Objekt liegt in einer der besten Wohngegenden Beckums, in unmittelbarer Zentrumsnähe und zugleich ruhig sowie in grüner Umgebung.
Die Wohnung
Wohnungslage
1. Geschoss
Bezug
sofort
Wohnanlage
Energie & Heizung
Warum sehe ich diese Anzeige? – Du siehst diese Anzeige basierend auf Ihrer Navigation auf unserer Website und den Suchkriterien, die du verwendet hast.
Energieausweistyp
Verbrauchsausweis
Gebäudetyp
Wohngebäude
Endenergieverbrauch
137,00 kWh/(m²·a) - Warmwasser enthalten
Weitere Energiedaten
Energieträger
Gas
Heizungsart
Etagenheizung
Details
Objektbeschreibung
360°-Rundgang: https://www.ohne-makler.net/panorama/369687/
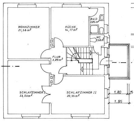
Diese gut belichtete und günstig geschnittene Dreizimmerwohnung im ersten Obergeschoss eines repräsentativen Altbaus kann ab dem 1. September 2025 bezogen werden.
Ausstattung
Garten, Keller, Vollbad, Gäste-WC, Parkett, Fliesen
Bemerkungen:
Die Wohnung verfügt in allen Räumen über hochwertige Bodenbeläge (vgl. Fotos/virt. Rundgang; Mobiliar wird aus sämtlichen Räumen noch entfernt).
Preisinformation
1 Stellplatz
Nettokaltmiete: 755,00 EUR
Weitere Informationen
Sonstiges
Heizungsart: Etagenheizung
Energieträger: Gas
Es wird eine Indexmiete i. S. v. § 557b BGB vereinbart.
Eine Besichtigung der Wohnung ist nach Vereinbarung möglich.
Folgende Unterlagen sind vom Mieter bei Abschluss des Mietvertrags vorzuweisen:
- aktueller...
Dokumente
Anbieter der Immobilie
ohne-makler.net - Immobilien selbst vermarkten
Humboldtstr. 25 A, 21509 Glinde
Privat vom Eigentümer
Dein Ansprechpartner
Kontaktiere den Anbieter schriftlich, es ist keine Telefonnummer hinterlegt.
Online-ID: 2mdts5g
Referenznummer: 369687
Finde Angebote wie dieses
Hier geht es zu unserem Impressum, den Allgemeinen Geschäftsbedingungen, den Hinweisen zum Datenschutz und nutzungsbasierter Online-Werbung.