
Metis GmbH
Herr Erik Stache
+49 ···
Nr. anzeigenPreise & Kosten
Provision für Käufer
Bitte beachte, das Angebot kann bei Vertragsabschluss die Zahlung einer Provision beinhalten. Weitere Informationen erhältst Du vom Anbieter.
Lage
Das Bauvorhaben befindet sich in dem beliebten Kieler Stadteil Russee in direkter Nähe zum See "Vorderer Russee". Die nahe und naturbelassene Umgebung lädt zum verweilen und entspannen ein. Alle Dinge des täglichen Bedarfs befinden sich in direkter Umgebung. Das Grundstück verfügt über eine optimale Süd-West-Ausrichtung und...
Das Renditeobjekt
Kategorie
Mehrfamilienhaus
Details
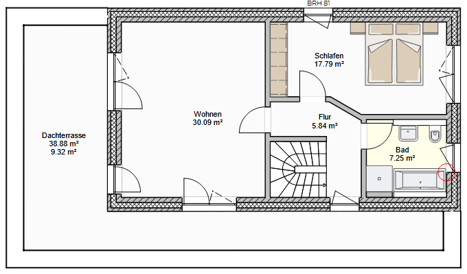
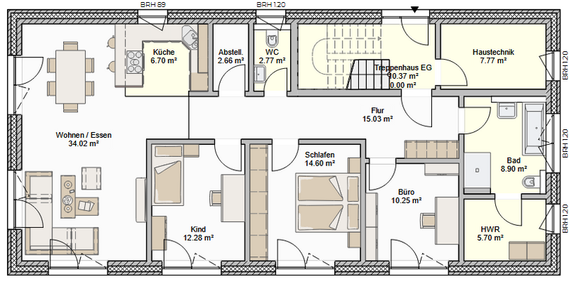
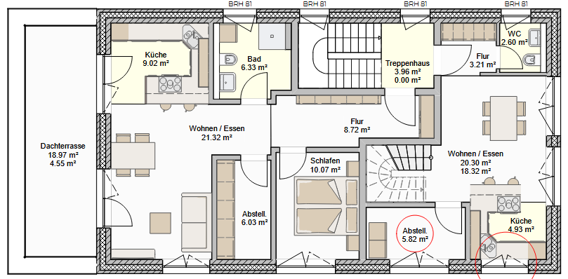
Objektbeschreibung
Auf einem bereits vorhandenem Grundstück mit optimaler Süd-West Ausrichtung mit circa 730 m² Grundfläche Eigenland ist ein Mehrfamilienhaus mit 3 Wohneinheiten bereits genehmigt und wartet auf die Umsetzung. Die naturnahe und nur 3 Einheiten umfassende Gebäudegröße garantiert ein erholsamen Lebensmittelpunkt. Das bereits...
Ausstattung
Bei der Planung dieses Projektes haben wir bereits ein hochwertiges Paket mit tollen Ausstattungsmerkmalen für Sie zusammengestellt:
- KfW 55 Standard aktuelle GEG
- Luft-/Wasser-Wärmepumpe der Fa. Wolf oder Bosch Junkers
- Photovoltaikanlage 30 kWp mit Batterie-Speicher (Grüner Strom für die Wärmepumpe)
-...
Weitere Informationen
Sonstiges
Für dieses Grundstück und dem Bauvorhaben liegt ein positiver Bauvorbescheid vor. Die Grundrisse können noch verändert und frei geplant werden.
Die hier dargestellten Zeichnungen und Bilder enthalten ggf. Sonderausstattungen und Zusatzleistungen, welche nicht im Leistungsumfang enthalten sind.
Der...
Anbieter der Immobilie
Metis GmbH
Osterfeld 8 -10, 24649 Fuhlendorf
Online-ID: 2mdy952
Referenznummer: 1064 (1/1064)
Finde Angebote wie dieses
Hier geht es zu unserem Impressum, den Allgemeinen Geschäftsbedingungen, den Hinweisen zum Datenschutz und nutzungsbasierter Online-Werbung.