
Crozilla.com
ViA real estate
+38 ···
Nr. anzeigenPreise & Kosten
Provision für Käufer
Bitte beachte, das Angebot kann bei Vertragsabschluss die Zahlung einer Provision beinhalten. Weitere Informationen erhältst Du vom Anbieter.
Die Wohnung
Wohnungslage
3. Geschoss
Wohnanlage
Details
Objektbeschreibung
U okolici Trogira posredujemo u prodaji stambene zgrade s 23 stana, kvalitetne gradnje i modernog dizajna, udaljene 600m od mora.
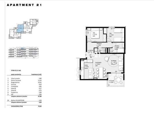
Stan 20 nalazi se na trecem katu zgrade, interijer je povrsine 95,52m2, a ima i balkon s pogledom na more povrsine 22,63m2.
Sastoji se od ulaznog hodnika, kupaonice, toaleta...
Weitere Informationen
Stichworte
Anzahl der Schlafzimmer: 2, Anzahl der Badezimmer: 1, 1 Etagen
Anbieter der Immobilie
Crozilla.com
Nova cesta 60, 10000 ZAGREB
Online-ID: 2mdyq5l
Referenznummer: 18784025_0
Finde Angebote wie dieses
Hier geht es zu unserem Impressum, den Allgemeinen Geschäftsbedingungen, den Hinweisen zum Datenschutz und nutzungsbasierter Online-Werbung.