

Volksbank Vechta eG
Herr Andreas Borchers
042 ···
Nr. anzeigenPreise & Kosten
Provision für Käufer
Bitte beachte, das Angebot kann bei Vertragsabschluss die Zahlung einer Provision beinhalten. Weitere Informationen erhältst Du vom Anbieter.
Lage
Die 8 Wohneinheiten werden im voll erschlossenen Baugebiet Werner-von - Siemens Straße gebaut.
Die Stadt Twistringen liegt im Zentrum des Landkreises Diepholz, ca. 35 km südlich der Hansestadt Bremen. Durch Twistringen führen die Bundesstraße 51 (Bremen-Osnabrück) sowie die Bundesbahnlinie Hamburg-Ruhrgebiet. Zum...
Das Haus
Kategorie
Doppelhaushälfte
Baujahr
2025
Energie & Heizung
Warum sehe ich diese Anzeige? – Du siehst diese Anzeige basierend auf Ihrer Navigation auf unserer Website und den Suchkriterien, die du verwendet hast.
Energieausweistyp
Bedarfsausweis
Gebäudetyp
Wohngebäude
Effizienzklasse
A+
Weitere Energiedaten
Heizungsart
Luft-/Wasser-Wärmepumpe, Zentralheizung
Details
Objektbeschreibung
Objektbeschreibung
Im Jahr 2025 haben 8 Familien die Möglichkeit Ihren Traum vom energieeffizienten Eigenheim nach BEG 40 mit uns im Neubaugebiet Werner-von Siemensstraße zu verwirklichen.
Effizienz wird hier "Gross" geschrieben:
Gebaut werden hier 8 klimafreundliche Neubauhäuser (KW 40) mit je ca...
Ausstattung
- Klimafreundlicher Neubau (KfN)
- Finanzielle Förderung durch KfW 40
- Luft-Wärmepumpe
- Dachziegel in Zinkgrau für besseren Wärmeschutz
- Massive Bauweise
- Designer-Bad
- Fussbodenheizung
- Große Fensterflächen für viel Licht
- 3fach-Verglasung
- Elektrische Rollladen
- Durchdachte...
Weitere Informationen
Sonstiges
............. Die komplette Beschreibung finden Sie im PDF-Exposé, welches Sie bei uns anfordern können.
Stichworte
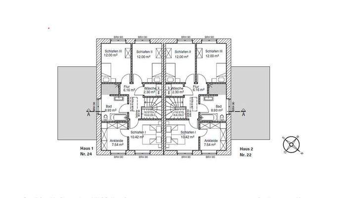
Stellplatz vorhanden, Nutzfläche: 29,01 m², Anzahl der Schlafzimmer: 3, Anzahl der Badezimmer: 1, Anzahl der separaten WCs: 1, Anzahl Terrassen: 1
Anbieter der Immobilie
Volksbank Vechta eG
Oyther Straße 59, 49377 Vechta

Online-ID: 2me2g5c
Referenznummer: 021-T2262
Finde Angebote wie dieses
Hier geht es zu unserem Impressum, den Allgemeinen Geschäftsbedingungen, den Hinweisen zum Datenschutz und nutzungsbasierter Online-Werbung.