
LIND Immobilien GmbH
Herr Paul Kleindl
+43 ···
Nr. anzeigenPreise & Kosten
Kaution
3 Bruttomonatsmieten
Provision für Mieter
3 Bruttomonatsmieten zzgl. 20% USt.
Warum sehe ich diese Anzeige? – Du siehst diese Anzeige basierend auf Ihrer Navigation auf unserer Website und den Suchkriterien, die du verwendet hast.
Büro-/Praxisfläche
Energie & Heizung
Warum sehe ich diese Anzeige? – Du siehst diese Anzeige basierend auf Ihrer Navigation auf unserer Website und den Suchkriterien, die du verwendet hast.
Heizwärmebedarf (HWB)
54,49 kWh/(m²·a)
Weitere Energiedaten
Energieträger
Fernwärme
Details
Objektbeschreibung
QUICK FACTS: STARTBÜRO I DACHGESCHOSS I LIFT I U3 SCHWEGLERSTRASSE
Ich mich auf Ihren Anruf!
Paul Kleindl 0699/1188 7600 oder 01/526 26 36
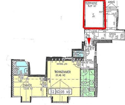
Stättermayergasse - Das Büro liegt im Dachgeschoß und umfasst eine Nutzfläche von 50,05qm. Es besteht aus zwei Räumen, Bad, Komplettküche, extra Toilette und...
Preisinformation
Nettokaltmiete: 650,65 EUR
Weitere Informationen
Stichworte
Nutzfläche: 50,05 m², Anzahl der Badezimmer: 1, Anzahl der separaten WCs: 1, Anzahl Terrassen: 1, Bundesland: Wien
Anbieter der Immobilie
Online-ID: 2me3h52
Referenznummer: OBGC20251027182958699b5b2880304
Finde Angebote wie dieses
Hier geht es zu unserem Impressum, den Allgemeinen Geschäftsbedingungen, den Hinweisen zum Datenschutz und nutzungsbasierter Online-Werbung.